
Campbel House Offices
ARCHITECTS
Tonkin Zulaikha Greer Architects
PROJECT MANAGERS
Cadence Australia, Coldale Consulting
STRUCTURAL ENGINEERS
M+g Consulting
ASSOCIATE DIRECTOR AND PROJECT ARCHITECT
Nazia Kachwalla
SERVICES ENGINEERS
Jha Consulting Engineers
DIRECTOR AND PROJECT LEAD
Tim Greer
SENIOR ASSOCIATE
Camilla Van Den Berg
GRADUATE OF ARCHITECTUR
Tracey Lay
SENIOR ARCHITECT
Sara Valentin
DIRECTOR QMS
Roger O'sulivan
BIM MANAGER
Kevin Lee
ARCHITECTURAL ASSISTANT
Madeleine Gallagher
LANDSCAPE DESIGNERS
Dangar Barin Smith
YEAR
2022
LOCATION
Sydney, Australia
CATEGORY
Offices, Adaptive Reuse
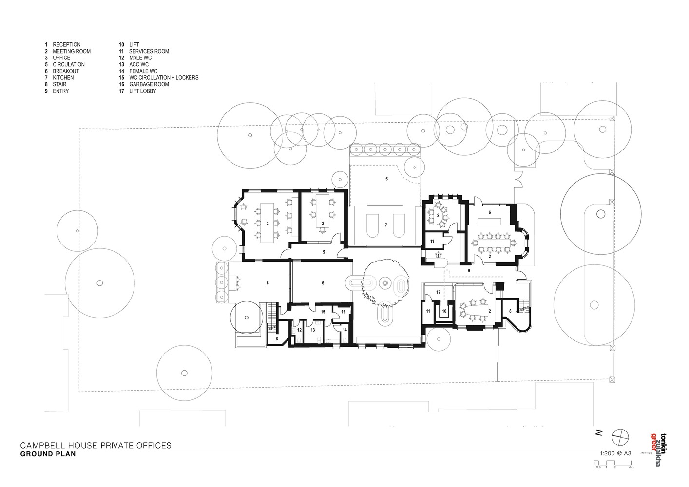
Campbell House is the adaptive reuse of an 1890s early Federation house set within a Heritage Conservation area.
The integrated design approach of architecture-heritage-interior stitched together unifies the contemporary office use and the original building.
Through the simplicity of materiality and bespoke architectural details, the ‘Campbell House’ project intertwines the relationship between new and old.
The project brief was to create a design response with a predominately white palette in a heritage context from a time when dark colors and earthy tones of brick and terracotta were fashionable.
The aim was to create a calm, durable, timeless, and sustainable workspace. A design approach is seated in the relationship between the two generations of the building – how one is situated against the other, how the detail strengthens the contemporary without detracting from the inherited, and how contemporary usage operates smoothly in the new arrangement.
The threshold between inside and outside is blurred by extending landscape and natural light into the building.
The garden is welcomed into the interior with deliberate vistas of a mature Weeping Fig tree while interior seating elements find their way out into the garden.
Natural light is filtered using 91 solar panels that generate 33kWh of energy. The panels supported by batteries are likely to assist the functioning of the building for 80% of the year without drawing power from the grid.
Materials are selected to celebrate the original extent of the late 1800’s Federation house. Recycled slate roof tiles restore the original roof.
Contemporary new materials like glass bricks, white bricks, metal window reveals, metal awnings, timber floors with solid zinc thresholds, and clear glass make up the palette of materials that form the new architectural expressions that directly contrast the existing original building.
This project is an exemplary environmental design based on natural light, passive ventilation, material selection, and electricity generation, all facilitated by the new contemporary intervention.
A glazed roof spans between the two existing roof ridges north of the site. Solar blades absorb the northern sun via photovoltaic panels to generate electricity while providing sun shading, keeping the interior under the glass roof cool.
The glass roof allows maximum natural light into the core of the building and breakout areas while the blades over minimize the heat load.
Glass louvers at high and low levels on the north, south, and western facades allow for passive ventilation to the circulation and breakout spaces.
With interior biophilia in mind, conditions have been established to sustain a mature Weeping Fig tree.




















