
Primitive House
ARCHITECTS
Hanghar
CONSTRUCTION
Reformas Y Decoraciones Del Segura Sl
PROGRAM
Vivienda
CLIENT
Bosco Sodi, Claudio Sodi, Viñedos De La Alcarria
LOCATION
Guadalajara, Spain
CATEGORY
Houses
Located in the vicinity of a small family winery, Casa Primitiva proposes a new perspective on the theme of minimal housing, understood here not as a limitation of physical space but of the necessary resources for its construction.
Commissioned by artists Claudio and Bosco Sodi, the project questions their relationship with the natural environment at a time when urban life is being called into question.
It criticizes the unstable precariousness currently faced by cities like nearby Madrid, and the move towards rural environments presents a new attitude towards nature.
An attitude that is removed from the romantic and idealized vision of the 19th century, and rather focused on the inevitable situation of housing.
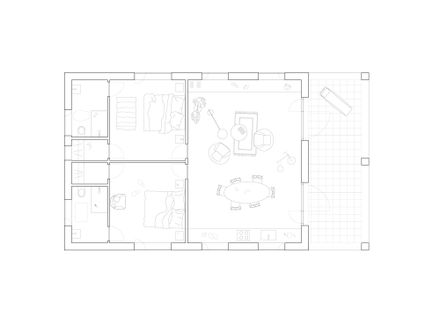
Typologically, the house is situated in an undefined territory between rural, industrial, and agricultural areas.
While its scale and traditional gable roof may reference the imagery of an isolated dwelling in the landscape, its interior suggests that of an artist's studio, with exposed beams and a continuous concrete floor.
Similarly, the exterior finish of the building, made of projected waterproof mortar, commonly used for insulation in houses in the area, reveals its residential program within the winery complex while abstracting it into a continuous and monolithic volume.
Structurally, the exterior load-bearing walls support five large metal trusses that span four openings, organizing the program from the most public and exterior to the most private and interior.
These openings consist of a front porch, kitchen, dining room, living room, and finally bedrooms and bathrooms.
The public area opens up to the landscape with two large pivoting glass doors that frame the vineyard, while the private spaces seek intimacy with small and deep window openings.
























