Home For Family
ARCHITECTS
Koki Sugawara Architects
CONSTRUCTION
Efforks, Rikiya Terai
MANUFACTURERS
Hi-ceramics, Mortex, Nippon Chemitec, Sangetsu, Toolbox
LEAD ARCHITECT
Koki Sugawara
LOCATION
Japan
CATEGORY
Houses
This project is a renovation plan for a house in the Kanto region that was inherited from the client's parents.
The client wanted to rearrange the space they once shared with their parents and make layout changes to accommodate living with their own children.
One major challenge of this project was that the existing house had two floors and a total floor area of about 178 square meters, which was a bit too large for a nuclear family.
While the client desired a full renovation, the cost would increase significantly due to the large volume of the house.
Upon evaluating the required volume based on the family composition, it was determined that the first floor alone would provide sufficient space.
Therefore, the first floor was kept as a simple and minimally renovated area, with the intention of the parents potentially using it in the future, while the second floor became the main focus of the renovation
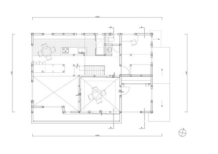
For the second-floor plan, considerations were made not only in terms of the horizontal design but also in terms of the vertical section to ensure a heterogeneous space.
Due to the close proximity to neighboring houses, which is common in urban areas, there was a limitation in creating large openings and external spaces.
To address this issue, a portion of the roof was changed to glass, and the use of sliding doors allowed for a semi-outdoor space that could be opened to the outside, creating a healthy floor resembling a "courtyard" or "veranda" where one can experience natural light and air.
In terms of finishes, special attention was given to the flooring to allow for a direct tactile understanding of the spatial changes.
Different materials such as tiles, hardwood, sisal, and FRP were selected to emphasize variations in texture for each section of the space.



























