Former Louvre Hotel
ARCHITECTS
Diana Barros Arquitectura
ENGINEERING
Ncrep – Consultoria Em Reabilitação Do Edificado E Património
ACOUSTIC DESIGN
Daj Engenheiros Associados
MAIN ARCHITECT
Diana Barros
COLLABORATION
Marcos Maia; Joana Fernandes
MANUFACTURERS
Aleluia Cerâmicas, Kerakoll, Marazzi, O/m Light - Osvaldo Matos, Valadares, Zangra
BUILDER
Fl Construções
THERMAL ENGINEERING
Daj Engenheiros Associados
INSPECTION
Add Building
YEAR
2023
LOCATION
Porto, Portugal
CATEGORY
Housing
Text description provided by architect.
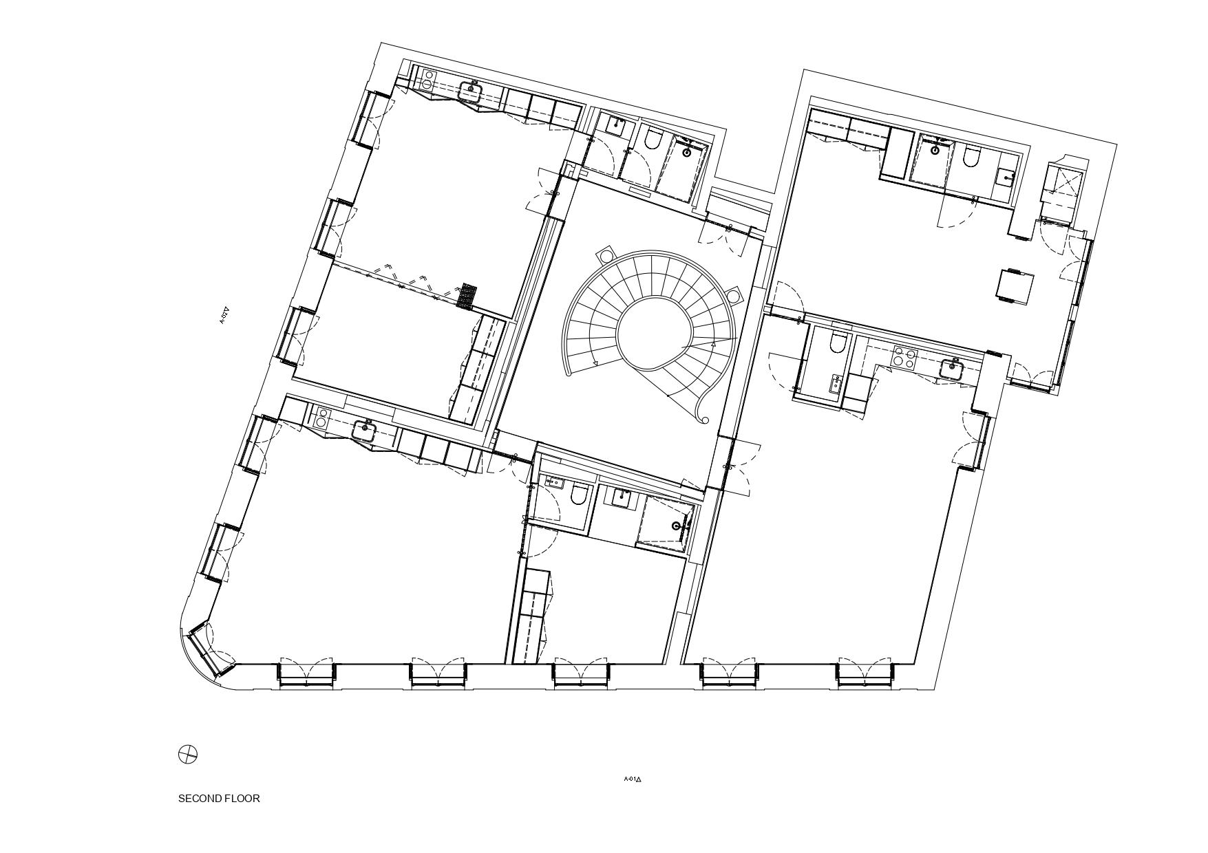
Built in the mid-19th century to be the house of a Douro nobleman, the building's fame was consolidated over time by the meticulous decoration of the woodwork, framed within the compositional rigor of the 19th-century facade, and the incredible staircase in the core of the building, which extends to the top floor and is topped off by the central skylight.
It has embodied various uses over time, from a hotel prepared to receive emperors, to the headquarters of a resistance movement against the Estado Novo, from the home of the Oporto Film Club to a driving school.
The proposed program involved making it embody another: collective housing with commerce and services on the ground floor.
Perhaps more pedestrian, but no less daring, given the dominance of tourist use in the area.
The project tried to respect the incredible polyvalence of a building that was once almost everything, keeping the organization of the common areas and accesses, the careful decorative work that survived in the stonework of the facade and in the interior and exterior carpentry, and the constructive system used in the slabs and central staircase.
The tension between the scale of the original building and the domestic uses now introduced is accentuated by the elemental design of the new elements, emphasizing the textures and colors of the materials.
The fundamental aim was to create a robust and coherent whole, functionally integrated but adaptable and capable of making the natural and human resources invested in its rehabilitation profitable, prolonging its useful life and preparing it for another century and a half of use and as many other incarnations.

















































