Penthouse 1928 Balzar
YEAR
2022
LOCATION
Valencia, Spain
CATEGORY
Renovation
The 1928 housing in Valencia is located in a historic building that is part of the city's modernist architecture.
Its main facade is composed of parallel vertical axes where elongated window openings are aligned.
It stands out for its classic balustrades on the balconies and semi-circular arches in its openings.
On one hand, the preexistence, of incalculable value, constituted the starting point for the 1928 housing project.
And when classical elements are combined with contemporary intervention, the result is a magical fusion.
A juxtaposition of eras and a contrast of styles bring great value to the intervention.
A dialogue that speaks of respect and the passage of time. On the other hand, the property owners have a sensitivity and love for art and design which undoubtedly has brought fundamental value to the intervention.
In short, historic architecture, contemporary intervention with fine lines and curves, and art come together in this work that shines for its sensitivity.
Furniture pieces play a fundamental role in the composition of spaces. Serene pieces with simple and elegant shapes dress the atmosphere with light tones and natural materials to create spaces full of life and purity.
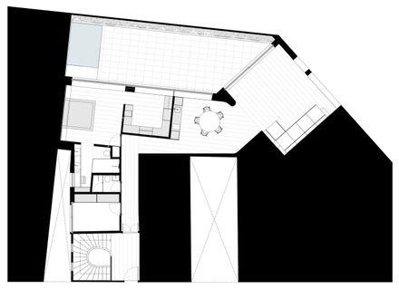
The housing program is distributed over two levels. On the ground floor, there is the most public part, with multipurpose workspaces and a meeting room.
On the first floor, there is a more private area with a large terrace with a pool, where the owners live.
The lighting has been carefully designed to give an intimate and warm character to the spaces.
The chosen materials are natural and in light and cream tones, contrasting with darker furniture elements.



























