
GEA Offices
ARCHITECTS
JAA Arquitectos
ARCHITECTS IN CHARGE
Javier Arias / Arq. Rosana Ponce De León
LANDSCAPE
La Plantula
MANUFACTURERS
American Standard, Legrand, Tecnolite
LOCATION
Morelia, Mexico
CATEGORY
Offices Interiors
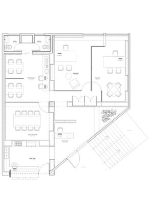
Built on top of a commercial space with a central structural pillar, a cross-shaped modulation was proposed to generate the four spaces requested by the client. The division was generated through low and thick walls made of steel structures, which were covered with rectangular clay tiles.
These walls allowed for embedding bookshelves and storage areas due to their ample depth. At the top of these walls, clear glass was placed to allow light to pass from the windows facing the exterior to the more secluded spaces.
The fronts of the office spaces and conference room were generated through wooden frames and textured glass partitions to provide the necessary privacy without interrupting the entry of natural light.
The entrance hall greets the user with a wall covered in natural stone from petrified roots, which reminds us of the company's essence and its sustainable commitment to the environment.
Regarding the materiality of the project, a fired clay tile was chosen to create a comfortable and welcoming work atmosphere for the user.
This first terracotta strip, with a height of 2.10m, provides a sense of spaciousness in a space that was confined by four walls and two windows. American oak wood was part of the set of tones that the project was generating and revealing.
The furniture was also commissioned by the client, carefully designed for each space to fulfill its function and integrate into the spaces as accurately as possible. The courtesy luminaires on the walls were custom-made to fit the dimensions of the clay tiles and generate indirect lighting inside the offices.
The hanging lamps were made with an iron frame and then covered with jute thread. In the front of the commercial space, under the same design criteria, a coffee bar was added, which was covered in cut gray marble so that it looked like a monolithic block, which serves the general users of the commercial plaza.













