
MAYHA Restaurant
ARCHITECTS
Mariagroup
TEAM LEADER AND SENIOR INTERIOR ARCHITECT
Rita Nader
MANUFACTURERS
Finn Juhl
3 D VISUALIZATION
Ismail Bdeiry
MEP CONSULTANTS
John W Bathurst Ltd
BUILDER
P&a Shop Fitting
INTERIOR DESIGNER AND CONSTRUCTION FOLLOW UP
Cindy Daccache
LIGHTING CONSULTANTS
Hilights Sal
PRINCIPAL ARCHITECTS
Georges Maria, Michele Chaya
STRUCTURAL CONSULTANTS
Mmp Design Ltd
SENIOR INTERIOR DESIGNER AND PARTNER
Claudia Skaff
PROGRAM / USE / BUILDING FUNCTION
Restaurant / Bar
LOCATION
United Kingdom
CATEGORY
Bars
Mayha on Chiltern Street is a two-floor gastronomic adventure.The ground floor offers an Omakase experience while the lower ground floor is conceived around a Japanese bar with a connection to an outdoor courtyard.
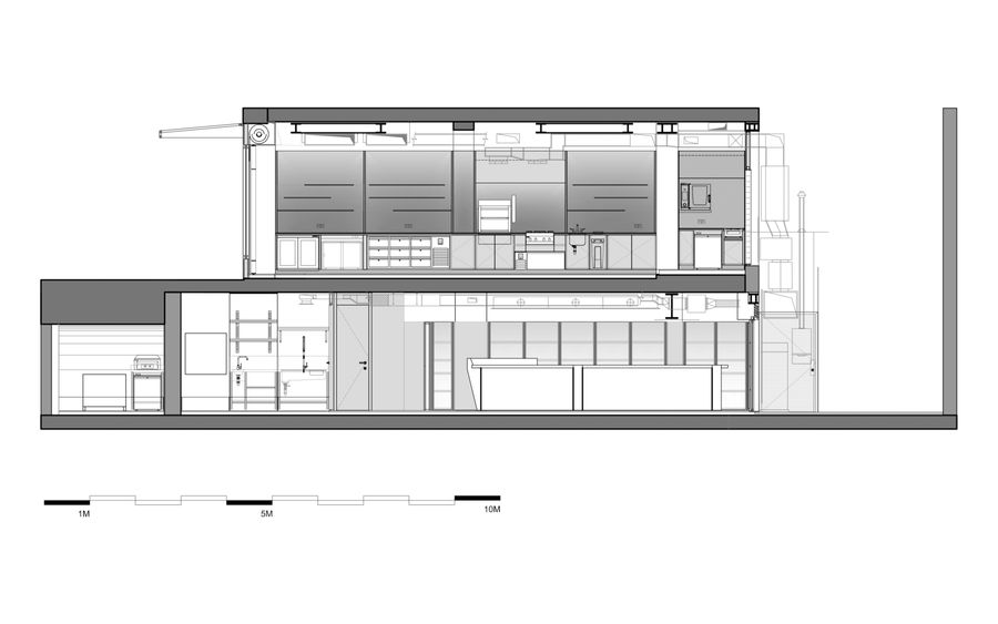
The dining experience on the ground floor is centered on the performance of the chef: a custom-designed walnut wood bar encloses the cooking and positions the guests in an immersive relation with the kitchen.
Inspired by the Kumiki building technique, the bar is made of large sections of solid walnut assembled with wood pieces to form a sturdy object: joints remain visible and continuous throughout the shape of the counter.
The elliptical bar is centered with the kitchen: a wall-to-wall alignment of equipment dedicated to the refined Omakase cuisine, all finished in stainless steel.
The background wall in this long element carries thin shelves in the same material, to store and display the various ceramic ware that was designed for the restaurant. The wall features a gradation in the finish of stainless steel from matt to polished so that it becomes fully reflective in its top part.
The mirror-like panels will then reflect the space and a custom-designed suspension.
Conceived as a light installation stretching out above the table, the suspension is made of 700 washi (mulberry paper) shades, each individually crafted into thin horizontal layers, fitted with light, and supported by branching copper tubes that contrast with the black ceiling.
Hovering above the counter, the fixture follows the direction of the ellipse and doubles in size when reflected in the polished mirror panels against the kitchen wall. The floor is finished in brick-sized red travertine tiles.
The variation in color between the tiles generates a unique pattern and gives a strong warm accent to the space. At the end of the dining space, beyond the wood counter, the kitchen continues and becomes a theatrical set for the cooks.
It ends with a window into the courtyard, made of a grid of glass blocks that blurs the vision into this dense urban gap. An old wrought iron spiral staircase connects the ground floor to the lower floor.
Restored and hand-painted, the stairs descend into a void where the original brickworks are revealed. The same brick walls continue to the lower floor and contrast with the new custom cement tiles in black & white.
The same tiles continue onto the courtyard that becomes accessible from this level.A bar occupies the full width of the space: made of burnt wood, in the tradition of “shou sugi ban”, it is also an assemblage of large pieces of solid wood that stand out against the warm walnut shelving and paneling behind.
Within each shelf, mirror brass boxes will reflect the light and the bottles.
A DJ turntable is integrated into the bar and performance speakers are within the background shelves, preparing for a captivating musical environment.

















