Ritmo Formentera
YEAR
2021
LOCATION
Sant Ferran de ses Roques, Spain
TYPE
Hospitality + Sport › Restaurant
After spending the day on the paradisiacal beaches of the island of Formentera, Ritmo is thought as the place to go to enjoy a relaxing sunset and cheer up as the Mediterranean night takes center stage.
The place is located in the nerve center of the island and has the particularity of being a free-standing building, which gives it a magnificent presence from several points of view.
The rehabilitation project of the building focused on eliminating palimpsests and emphasizing the semicircular arches as the characteristic element of the building.
This action also had the objective of rehabilitating the disused roof and integrating the building into the Mediterranean environment through the lime coating of the entire envelope.
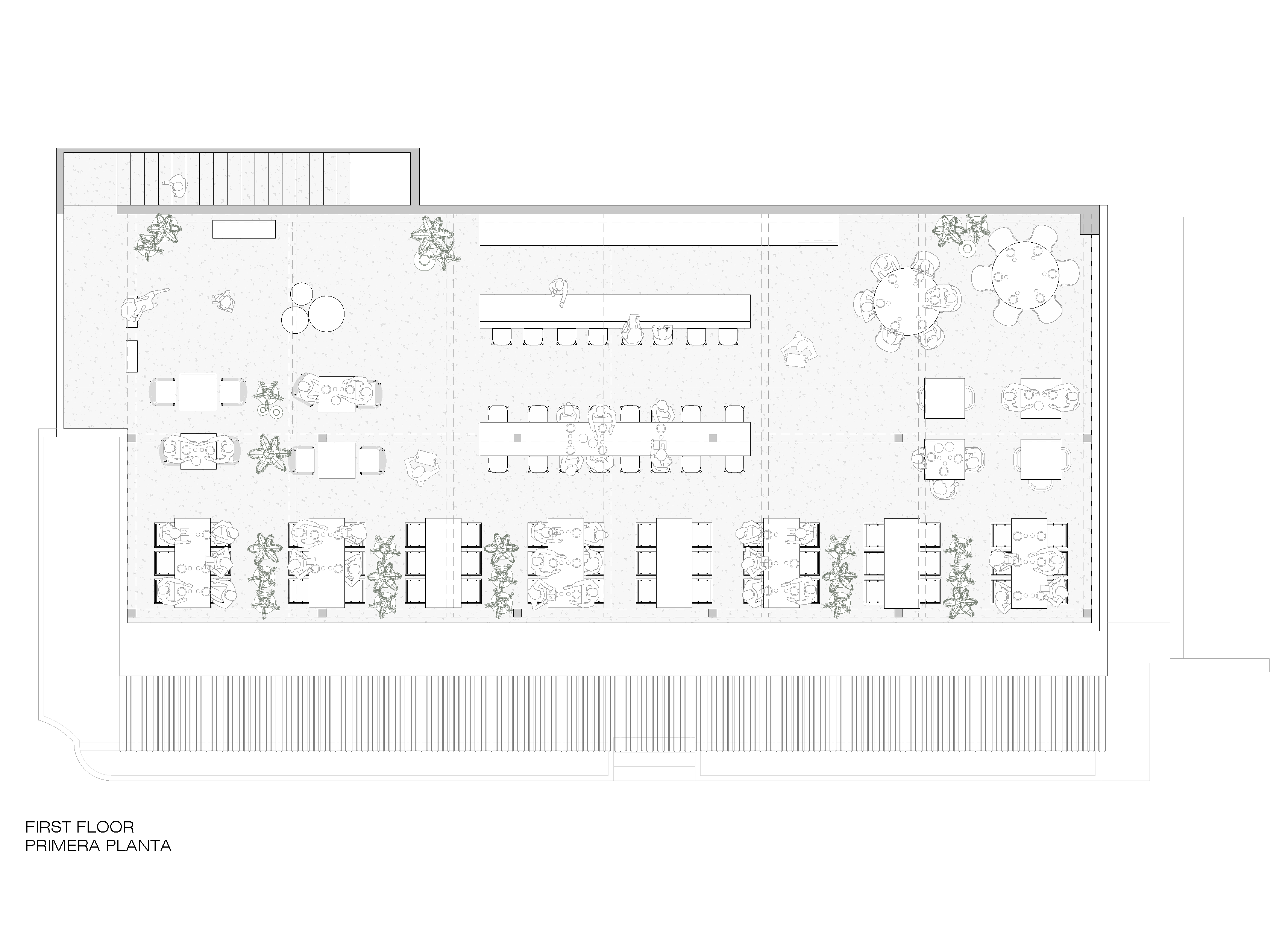
Inside, the restaurant has a first floor terrace elevated above street level, which has been given a more urban treatment and on which there is the intention of extending it towards the interior of the floor, maximizing the opening of façade openings and unifying the paving of both areas.
The palette of materials used in the interior responds to the character of the island.Only natural and typically Mediterranean materials such as clay, wood, jute, terrazzo or wicker are allowed.
These materials are present from the pavement (which with its playful cuttings participates in the diners' parties) to the ceiling (where wicker panels fulfill acoustic and decorative functions) through the decoration.
As part of the customer experience, special attention is paid to the toilets, screened behind a clay lattice, where the semicircular arches are once again present in the mirrors.
The main protagonist of this space is a large washbasin, made of terrazzo, which, being common, forces its users to interact.
On the upper floor there is a large pergola made of chestnut and eucalyptus wood, present in many of the nearby beaches of the island.It screens out the sun and reinforces the Mediterranean presence.
The decoration repeats again the leitmotiv of the natural use of materials and colors (terracotta, aquamarine,...).
It is on this floor that has the best views of the sunset from the center of the island and it is here that a play of lights and music is projected to animate the rhythm of the evening.


























