Hoth Photo Studio
ARCHITECTS
SPEC
LEAD ARCHITECT
Motoki Ishii
MANUFACTURERS
3m, Carl Hansen And Son
LIGHTING DESIGN
K Light Studio
LIGHTING DESIGN
K Light Studio
LOCATION
Shibuya City,Japan
CATEGORY
Offices Interiors
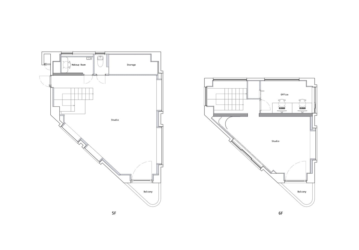
This photography studio is located on the fifth and sixth floors of a small six-story building.
It can be rented for seasonal apparel brand looks, product photography with models for e-commerce sites, and exhibitions.
As a result of its purpose, most of the space is taken up by plain white walls, wooden walls, white ceilings, and simple concrete floors, which are needed by many users.
The challenge was how to create a unique photo spot just by this studio within that situation. The fifth floor features a concrete staircase and a concrete box that encases the elevator.
By designing an irregular stonework sculptural staircase amidst the orderly white walls and concrete floor, the staircase becomes more than just a means of transportation - it becomes a stay that accentuates the clothes, shoes, and models.
As a photography studio, the sixth floor's flat shape inevitably created some dead space.
Rather than utilizing the dead space for storage of photographic equipment and furniture, a distorted glass panel with a mirrored surface was installed to reach the full 4.4-meter ceiling, resulting in a completely new and unique visual effect.
The potential for using these distorted mirrors to create unique and original photographs will be left to the creativity of the photographers and art directors who utilize this studio.
By introducing an unexpected feature into the studio space, I hope to stimulate the creativity of the creators who use it, and that they will produce exceptional photographic works that go beyond the original intent of the designer.

















