
City Kids Education Center
ARCHITECTS
Barker Associates Architecture Office
BUDGET
$1M - 5M
AREA
10,000 sqft - 25,000 sqft
YEAR
2021
LOCATION
Brooklyn, Kings County, NY, United States
TYPE
Educational › Nursery Elementary School
City Kids is a new childhood education center located in Williamsburg, Brooklyn. The project is an adaptive reuse of a former lumber warehouse located under an existing high-rise residential tower.
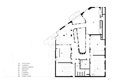
Six preschool classrooms open onto a central double-height courtyard gathering space lit by a large storefront window as well as a constellation of pendant light fixtures to bring the outside into a large interior space with limited access to windows.
This interior "plaza" features a thickened wall that incorporates the reception desk and storage cubbies and provides a central gathering space for the classrooms.

Windows of varying shapes and sizes in the interior façade allow borrowed light to enter the surrounding spaces on both levels and provide visual access for children and teachers.
The classrooms are interconnected through double doors and through shared spaces such as bathrooms and play sinks, with half height walls that allow for visual privacy for the kids and monitoring capability for the teachers.
The after-school program for elementary school students is accessed up the stairs at the reception area. Apertures bring light and views to the courtyard and the street. Lockers wrap the courtyard volume in the form of a city skyline.
Specialized classrooms for cooking, theater, STEM, art, and movement are accessed off of the upper hallway. A lounge with bleacher seats provides a place for informal gatherings.
Plank flooring creates continuity between spaces. Plank flooring is also used to wrap the entries to the classrooms and windows.
Acoustical felt panels cut into graphic shapes provide visual interest.
The pandemic prompted some ventilation improvements in the form of electronic and ultraviolet light HVAC filters, touchless security and check-in points, as well as the addition of operable windows to bring light and air to all classrooms.















