House In Barrio Del Carmen, Valencia
YEAR
2015
LOCATION
Valencia, Spain
TYPE
Residential › Apartment
Located on the top story of a three-floor townhouse built in 1900, the project saw the demolition and reconstruction of the interior. The roof, which had to be completely rebuilt, was restored to its original condition with arabic curved tiling.
Existing interior wooden beams and ceramic tiles that could be salvaged remain as are.The soffit, which was previously hidden by a false ceiling, has now become the main feature of the house.
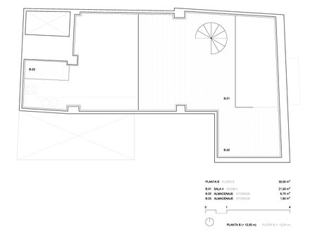
In order to create maximum natural light intake, the space was split amongst two levels.The lower is used for living space and commons activities, with an upper dedicated to sleeping, both connected by a staircase that aims to be a simple steel sculpture.
The house is a flexible environment, with the possibility of having one continuous space or various compartmentalised spaces, according to the needs of its occupants.
Wood is the predominant material in this project and a single piece of furniture, also made of wood, provides all the storage that the house needs.















