Shepherd's House
YEAR
2018
LOCATION
Torres Vedras, Lisbon, Portugal
TYPE
Cultural › Religious
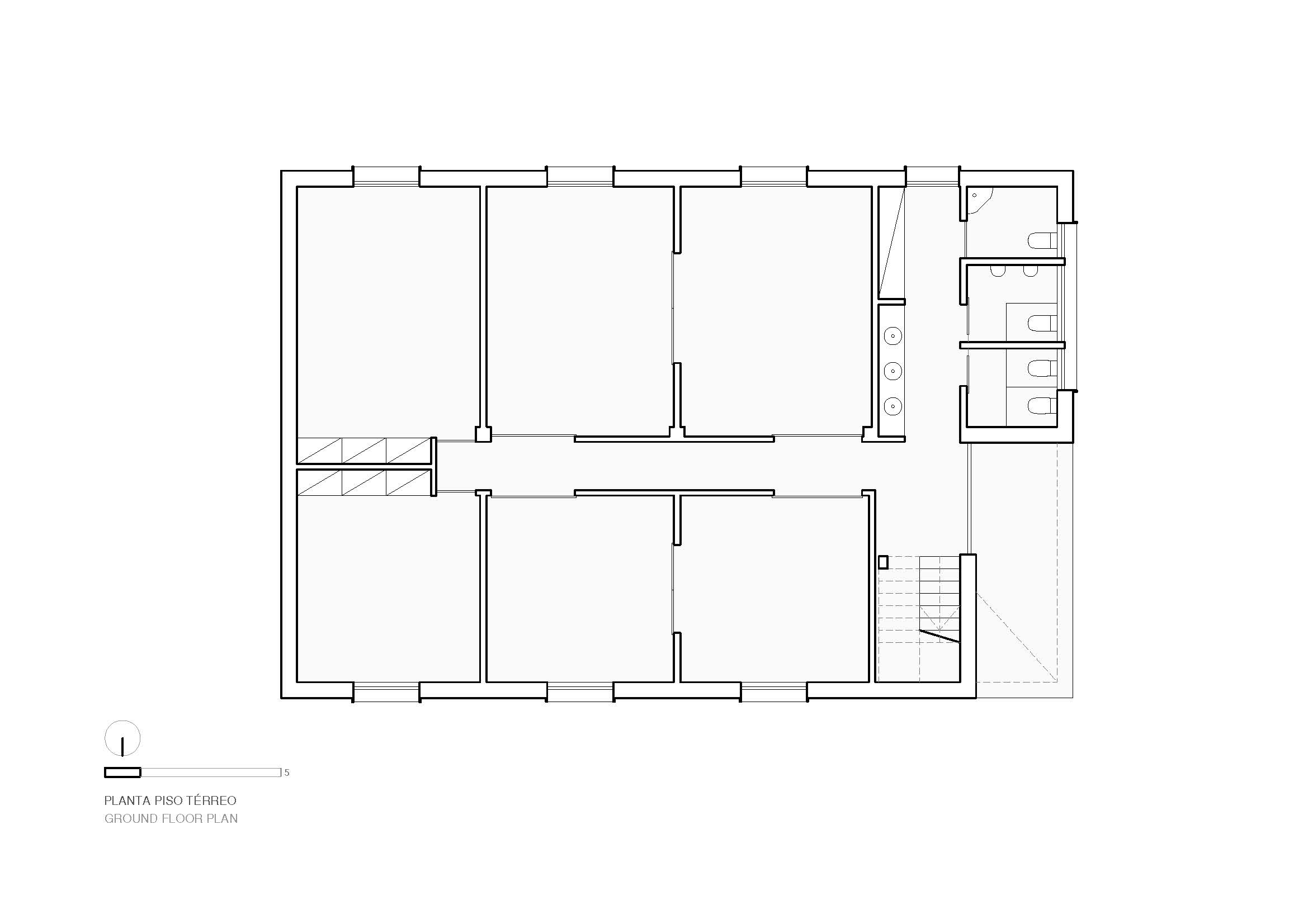
The project responds to the need to create a multipurpose space, compartmentalized, with the intent of gathering people to learn, discuss, listen to different themes and religious teachings.
Four white walls were built on which lay a heavy, massive concrete roof. The interior is supported through wood lightweight structures and panels.
From the confrontation between the different materiality, different spaces, perceptions and experiences are created.
On the ground floor, the light entering through the white walls floods each space, enhancing the honey tone of the wood and the Osb of the finishing panels.
It is a comfortable and dynamic space in its use for the day to day.
When we ascend to the upper level, lightness is expected, but we find an austere and raw concrete structure, pierced by four lanterns that allow the light to construct the limits of that sober space.
That all the activities that take place there, from the most common to the most sacred, are not interrupted by the external reality.
A plural space was built, which allows children to assimilate new learning, but also wiser individuals to share their knowledge and life experiences.















