
Blue Bottle Coffee Roppongi Cafe
ARCHITECTS
Schemata Architects / Jo Nagasaka
PHOTO
Takumi Ota Photography (20)
AREA
1000 sqft - 3000 sqft
YEAR
2016
LOCATION
Roppongi, Minato, Japan
TYPE
Hospitality + Sport › Restaurant
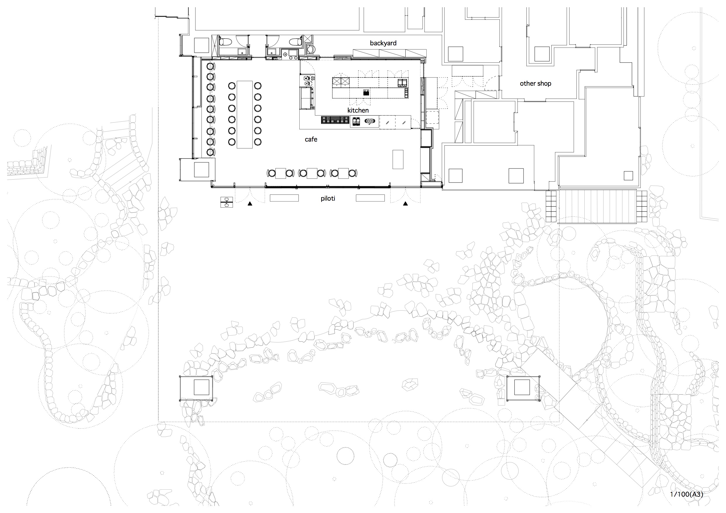
The shop is located on a back street at a distance from the busy avenue, facing a small sunken public plaza like a park where people can freely enter.
Our design is based on our vision of a cafe staying beside the plaza and quietly embracing the environment.
Main interior finish material is basswood plywood, and the entire walls are composed of regular repetition of wall cabinets with doors, while the strict regularity is moderated by inserting irregular grids of frames encasing several doors.

T +81 3 67125514
Schemata Architects スキーマ建築計画 一級建築士事務所
3 Chome-31-5 Sendagaya Shibuya-Ku Tokyo, Japan 〒151-0051 東京都渋谷区千駄ヶ谷3-31-5





















