Maida Vale Soft Apartment
ARCHITECTS
MWAI
YEAR
2017
LOCATION
United Kingdom
TYPE
Residential › Apartment
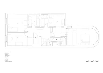
Refurbishment of a split level top floor apartment in a Victorian terrace in central London.
At the heart of the project is the beautifully crafted entrance hall.
The space provides the occupant their first impression of the home and all other spaces connect off it.
Soft textured polished plaster in a carefully controlled linear pattern transforms the space into a calming environment that leaves a lasting impression throughout the remainder of the house.
Through the use of geometry and pattern the minimal spaces are given character and a fresh face.
The sharpness is softened through the choice of materials and the geometric rigour that they have undergone.
This duality between the sharpness of the geometry and softness of texture and tone results in a beautiful and enchanting family home.
For this project we provided a full Project Management and Contract's Management service via our sister company MWAI BUILD.

















