
Cehegín Wine School
ARCHITECTS
INMAT Arquitectura
PHOTOS
DAVID FRUTOS (17)
BUDGET
$100K - 500K
AREA
3000 sqft - 5000 sqft
YEAR
2013
LOCATION
Cehegín, Spain
TYPE
Commercial › Exhibition Center Cultural › Cultural Center Gallery Museum Educational › Other Industrial › Winery
THE WINE SCHOOL OF CEHEGÍN
The old cellar where we developed this project, funded by the European Union,
belongs to a landmark building called “Casa de la Tercia”, constructed in the 7th century and located in the small town of Cehegín in Murcia´s hilly interior.

The cellar is located on the semi basement of the building.
Historically, the grapes were pressed, in the building´s courtyard, the juice flowed into the cellar, traveling along channels carved into low-ceilinged limestone vaults, them into pine scuppers emptying into rows of a large urns in unglazed terra-cotta.
The urns were partially sunken in the earth to keep the maturing vintage al cool temperatures until it was fully aged.
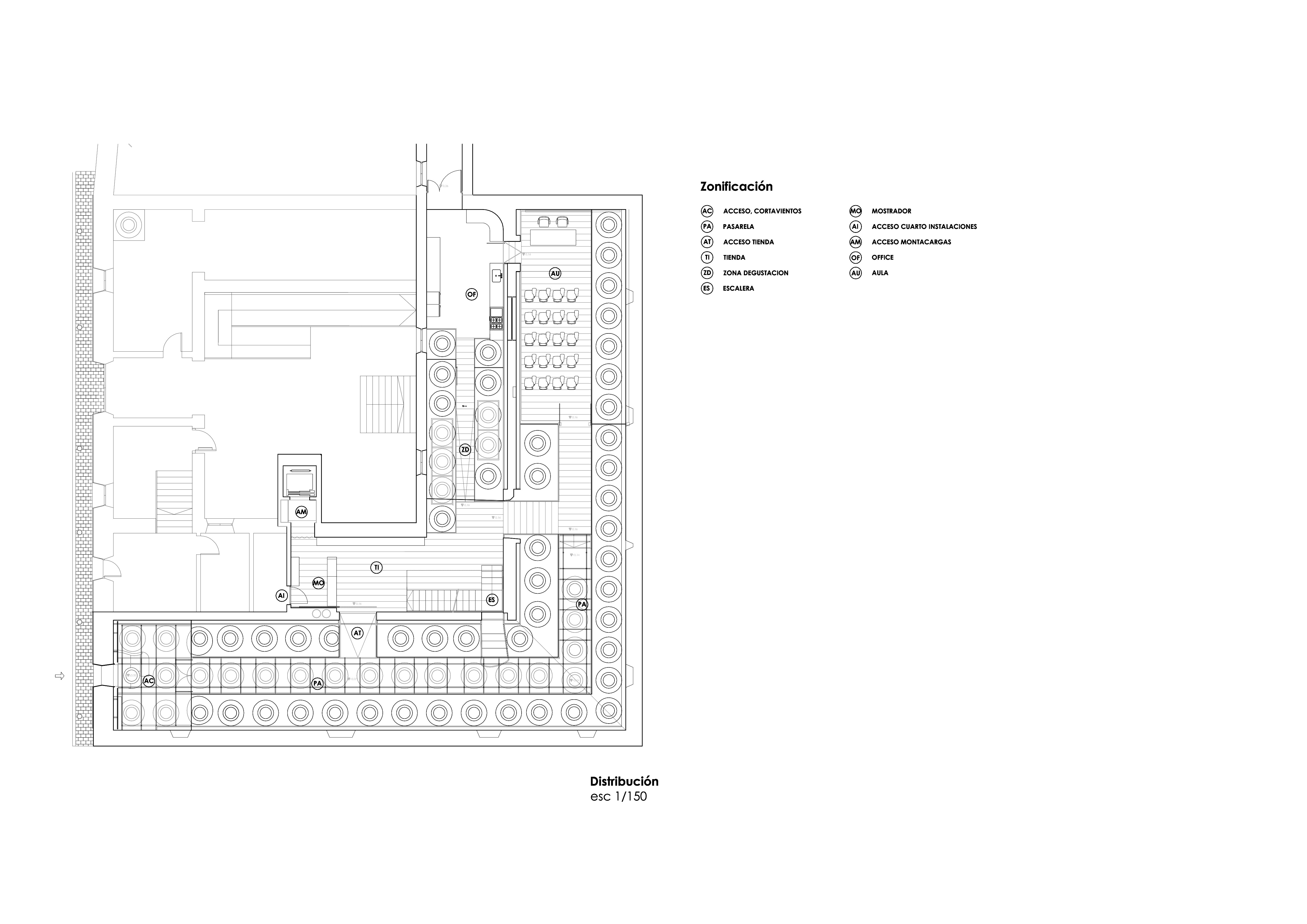
According with the project, we turn this interesting space into a gallery, with 342 square meters, where the main vault from the entrance is crossed over by a glass ramp that slopes gently down before leveling out to become a carpet of glass, a walkway that´s transparent and colorless but full of fleeting reflections.
Here, the visitors can enjoy of the exhibition. It consists mostly of panels suspended along the sidewalls, with illustrations and texts, taken from the book written by the Cehegín native and sommelier, Pedro Martinez.
At the far end, an open space hosts lectures and concerts, while the kitchen supports catered functions and cooking classes with wine pairings.
Crossing a wall we find the Wine shop, with interesting details, for instance, the necks of the bottles gripped by built-in pine yokes.
Conceptually, raw steel and wood are very elemental materials that work well with the historic parts of the interior, respecting the handmade character and the
patina of time.




















