No. 9 Rhapsody
ARCHITECTS
9 studio design group
STATUS
Built
FOUNDER
Tung Tsan Lee
DESIGNER
Henry Liu, Jiun-Kai Chen
YEAR
2019
LOCATION
China
TYPE
Commercial › Office
The studio space of a designer is the source to thoughts and concepts and a site of imagination.
Therefore we design our own studio like the setting for a science fiction movie with a strong sense of prop.
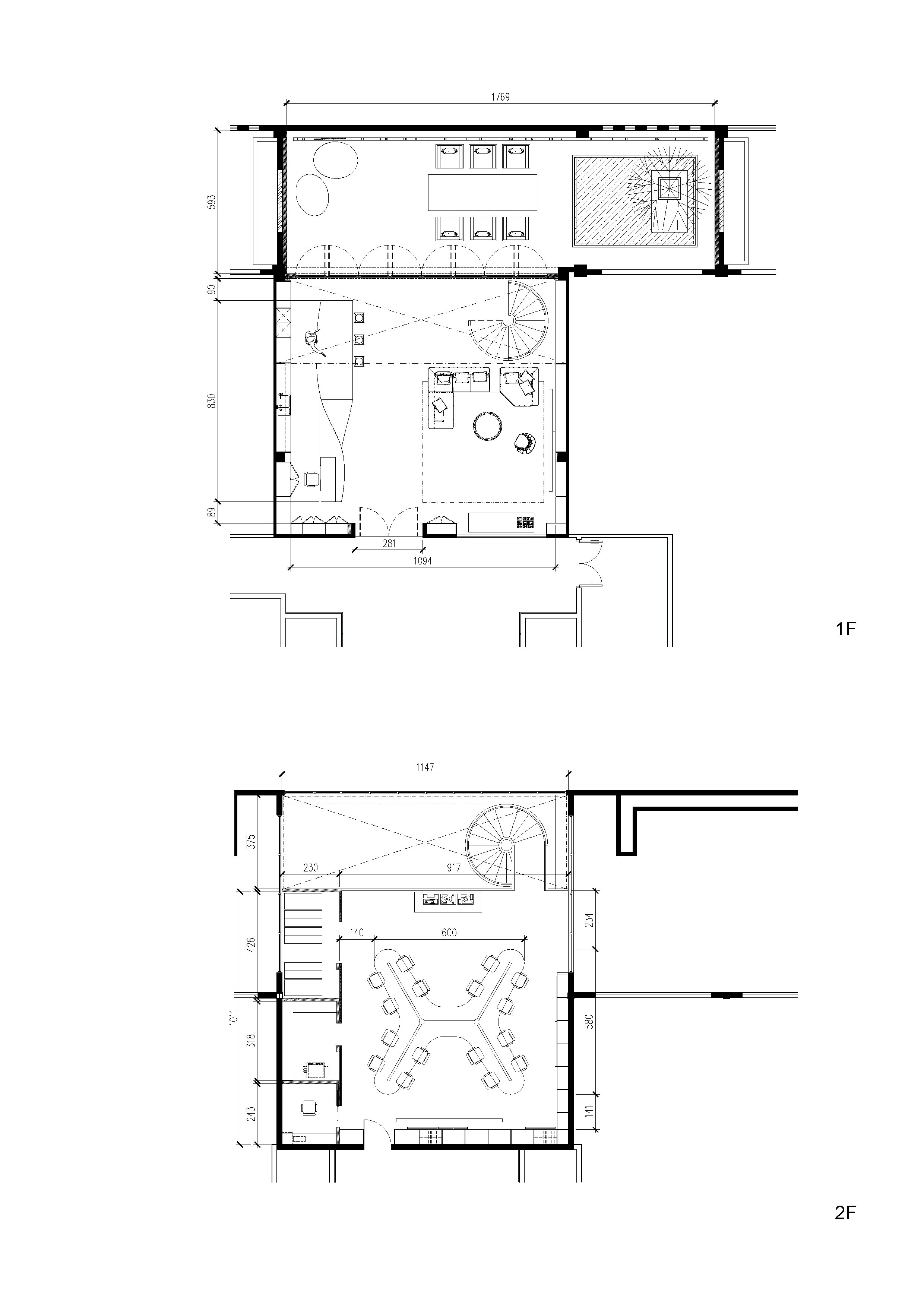
VARIATIONS AND EXPANSION IN SPACE
The two units yield multiple compositions and expansions in response to distance characters.
The cubic unit is applied on the couch, blanket, and steps, where the cubes covers the multi-dimensions of up and down, left and right.
The stereometric layering define the openness of multiple compositions on the first floor, such as the movable lay out of the furniture, the salon area for small lecture and gathering.
The transparent door with steel frame connect the inside to outside, implying the interlocking relationship between the two.
The black steel panels form the curvaceous unit. The layering of geometric shapes is distorted and divided like an organic morphology of water bar, information desk, and the long dining table.
The working desk on the second floor combines wood joints with steel panels. The structure looks like a butterfly that appears light and heavy at the same time. The symmetric shape facilitates the smooth circulation of workflow.











