Saham Rakyat Office
MANUFACTURERS
Aica, Barrisol, Flornine, MM GALLERY, Quadra, Steelcase, VitrA, Vivere
FURNITURE
Vivere Collection
CONTRACTOR
Majesty Design
LIGHTING CONSULTANT
h+ work lighting
LEAD ARCHITECTS
Jeffri Angkasa, Indri Sisilia
LANDSCAPE
Yanti, Hujanmas Florestika Kencana
DESIGN TEAM
Afif Eidwar, Wahyu Prima Putra, Vedita Tego Kuncoro
LOCATION
Jakarta, Indonesia
CATEGORY
Offices Interiors
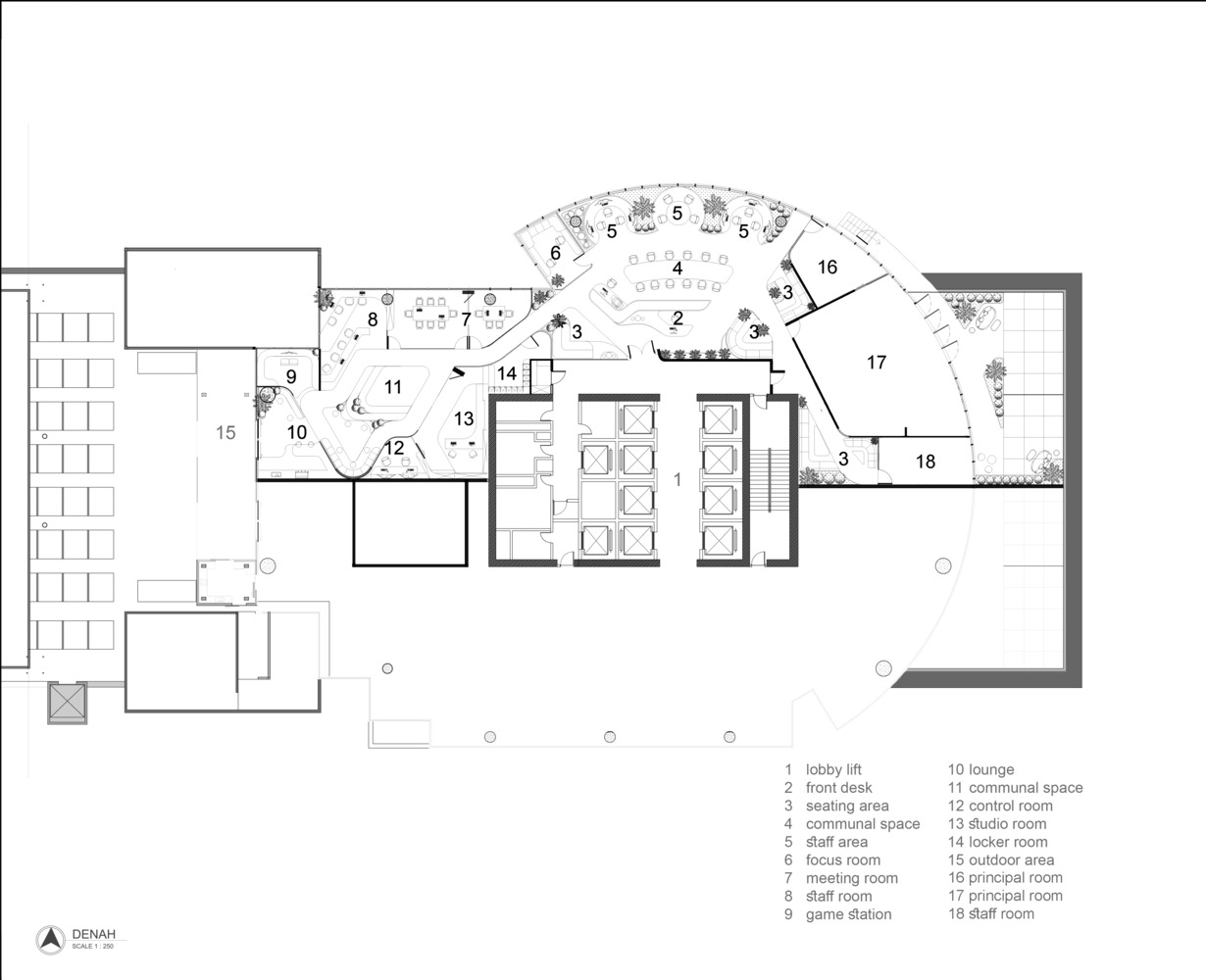
The first step of designing this co-working is to divide it into smaller sections and plant functional needs into every section.
Each function has its own unique characteristic, and each function is done by different divisions therefore the interior design is expected to carry different shapes and patterns.
Despite the differences, a unity of design is required by combining a few concepts that are represented by basic forms and prime colors. The Flexibility of stocks graphic is the inspiration behind this design.
RECEPTIONIST AREA
The receptionist area uses curvy shapes for the table, ceiling, and backdrop as the main concept of Saham Rakyat Office, which matches the dynamic graphics. The addition of marble skin (MM Gallery) added a luxurious feel to the reception area.
The Paludarium (Aquatic Freak) placement in the reception area intends to serve as a refreshing view for all the employees that enter Kantor Saham Rakyat.
The shape of the Paludarium is in line with the shape of the table, ceiling, and backdrop to create a connecting flow.
STAFF AREA
The placement of curvy Barrisol (H+) lights in the ceiling of the communal space and staff area gives a unique feel to the space.
The customized table with the 8 M (Vivere) expanse serves as a gathering table for the employees.
SEATING AREA
The Seating Area is in several spots in the room, used as a relaxing space, discussion space, and also working space because the Kantor Saham Rakyat work system is anywhere anytime (flexible).
STUDIO ROOM
The placement of dynamic shapes on the wall in the studio room is intended to create a more comfortable space.
The white color dominates the room to bring a futuristic and clean feel to the room. The curvy Barrisol (H+) lights in the ceilings emphasize the futuristic concept more to the studio room.
MEETING ROOM
The client has requested 2 types of meeting rooms: a big meeting room (for public use) and a smaller meeting room (semi-private use). The 2 meeting rooms are divided with a glass wall (MILL) partition that is detachable.
COMMUNAL SPACE
The partition wall between rooms uses glass partitions (Himalaya Abadi) creating a spacious feel.
The communal space in the center of the room can be used as a gathering space, working space, and discussion space.
The curvy formed benches and Barrisol (H+) lights become a point of view in the area.
LOUNGE AND COFFEE WORKING
There is also a Coffee Working area, that can be used as a working space while sipping coffee.
The dyn0.amically shaped coffee cabinet is fitting with the concept of Saham Rakyat. The color choice is dominated by white to give a spacious and clean feel.























