
De Primeira Tavern
ARCHITECTS
Tadu Arquitetura
ARQUITETO AUTOR
João Duayer
MANUFACTURERS
Loja de Azulejos
PROJECT AND DEVELOPMENT
Diego Curcio
YEAR
2022
LOCATION
Vila Madalena, Brazil
CATEGORY
Bar, Renovation
De Primeira was conceived by two chefs from São Paulo who were enthusiastic about the popular Rio de Janeiro taverns. Inspired by the desire to combine the atmosphere of Rio and São Paulo, the duo decided to open their own bar in Vila Madalena – SP.
The space offers uncomplicated food and drinks that refer to the culinary classics of traditional establishments.
Identifying particularities and architectural counterpoints between the two cities was fundamental for the elaboration of the aesthetic and constructive universe of the project.
Colors and textures navigate between different cultures, promoting the encounter between past and present, sun and rain, tradition and contemporaneity.
Preserving historical features of the building and part of the structural elements were part of the cautious process of believing in the re-signification and enhancement of pre-existing urban spaces in large metropolises.
The search for characteristic elements about the architecture of renowned bars revealed a range of aesthetic possibilities based on the identity of different regions of Brazil - From the red floor to the colorful tiles on the walls, passing through the relationship between street and counter, the set of plastic decisions and structural aspects summarizes the search for harmony between concept, gastronomy, tradition, cultures and encounters.
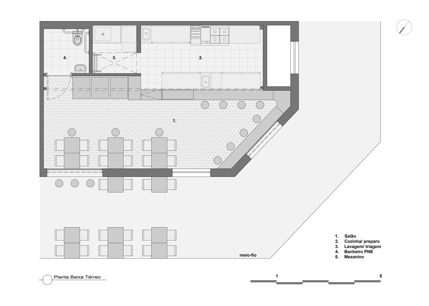
The space was organized between sidewalk, living room, counter, open kitchen, bathroom, washing dishes and upper storage.
The integrated kitchen allows the contemplation of the handling and preparation of food and beverages.
The activities inside the counter control the dynamics of the table space, stimulating the patrons' senses - hearing, smell and sight.
In addition to the activities in the covered area, the sidewalk is a fundamental part of socialization and consumption. Door and windows guarantee the relationship between outside and inside.















