JSY Concept Tea Store
YEAR
2019
LOCATION
Taipei, Taiwan
CATEGORY
Commercial › Retail
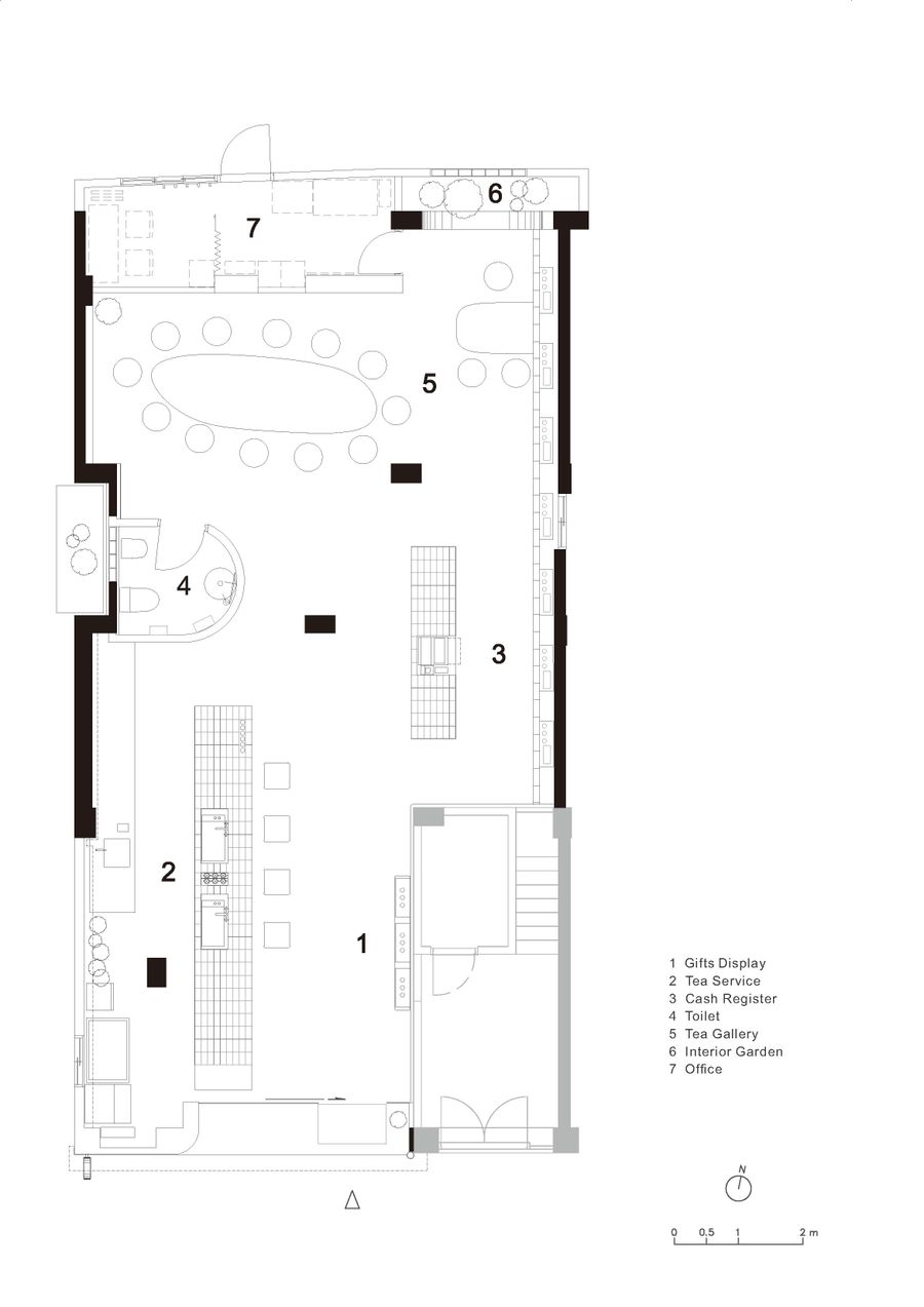
Inspired by brick and earth, a spatial scheme was adopted that the tea service bar was made from brick, set as an object within the space ; the house was conceived of as an earth cave, a stage background for events.
The ceiling was also designed like carved holes, like a zoomed-up contour to imply the Zisha teapot surface texture, called Zisha's "scent pores" that intercept the fragrance and increase its intensity.





















