Le Relais Boréale Brewery
ARCHITECTS
Atelier l'Abri
CONSTRUCTION
Modulor, Élément Bois, Mik Kukulsky, Marilou Pasquier, Julien Latour
FURNITURE
Inat
DESIGN
Jade Lachapelle, Pia Hocheneder, Nicolas Lapierre, Francis Martel Labrecque
LIGHTING
Studio Botté, Flyss, Bois Public, Sistemalux, Planteca, Polycor, Céragrès, Ramacieri Soligo,
House on the Rock, Bilodeau Inox, Atomic Soudure, LG2
LOCATION
Montreal, Canada
CATEGORY
Brewery, Restaurant & Bar Interiors
Text description provided by architect.
Le Relais Boréale is a meeting and tasting place for beer lovers located in the Mile-Ex neighborhood of Montreal. This is a homecoming for Les Brasseurs du Nord, a pioneer of microbreweries in Quebec, which brewed its first Boréale beers in the city 35 years earlier.
Wishful to transpose its circular approach into the project, they brought in L’Abri’s team, based a few blocks away, to design a unique venue highlighting eco-responsibility and local know-how.
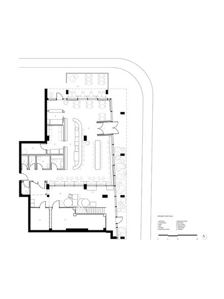
The microbrewery occupies a corner space within the Fabrik8 complex, a WELL-certified building. The project designed by L'Abri allowed the transformation of a commercial suite, made of concrete and glass, into an efficient brewhouse and a warm dining room that can accommodate 60 people.
The layout takes advantage of the double-height location by creating a mezzanine above the cold chambers containing the beer barrels.
The stainless-steel fermenters reside on top, in full view behind a large oak-framed glass wall. This strategy optimizes the production space and highlights the metal tanks and brewing activities day and night.
On the tasting room side, the rounded corners of the counter soften its lines and allow to sit customers in a friendly and fluid way. This long bar with 16 rows of taps is the welcoming point when entering the brewery.
Towards the brewing room, visitors discover a large dark blue table, the emblematic color of Boréale. At the heart of the project, this unique piece of furniture invites people to meet and share by evoking the tradition of Biergarten. An outdoor terrace extends the activities of the brewery to the street.
The use of natural materials such as native wood, local granite, and lime plaster, as well as soft lighting, contribute to warming the atmosphere of the dining room.
A selection of large plants, accompanied by a wall of climbing vines, recalls the boreal forest and helps to create an organic, human and social environment.
Putting forward an eco-responsible approach, the microbrewery has partnered with a company that recovers spent grains from brewing residues to transform them into flour for local bakeries. Brewing tanks and materials are also second-hand equipment.
The design honors this concern and prioritizes local manufacturing and sourcing. The design-build team of L’Abri and Construction Modulor surrounded itself with artisans from the neighborhood who share the same values for creating unique furniture and lighting.
Studio Botté, which creates luminous works from upcycled elements, designed and produced pieces that reuse, among other elements, old lamppost domes from the City of Montreal and liquor bottles.
The tables and chairs are handmade creations by woodworker Inat. The wood for its blue pieces and the outdoor benches come from Bois Public, an organization that recovers and reuses wood from downed Montreal ash trees.
Finally, the granite for the counters comes from a quarry less than 3 hours from the city. The Relais Boréale and its ultra-local design thus become a new homegrown flagship in the neighborhood.















