Rabi’ Artist Studio
AREA
70 m²
YEAR
2022
LOCATION
Casablanca, Morocco
CATEGORY
Offices Interiors
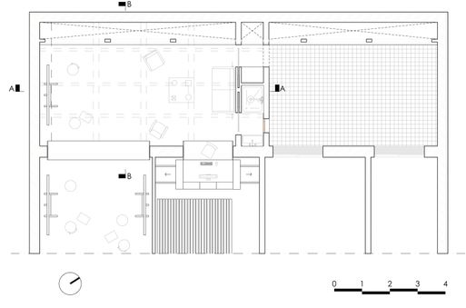
This project involves creating an extension of an artist studio for a famous Moroccan painter Mr. Abdelkebbir Rabi’. The project takes place in the old colonial center of Casablanca, close to the city's biggest public park and the splendid “sacré coeur” church.
Mr. Rabi’ used to work with bi-chromatic drawing or painting, he trades between figurative and abstractive representation.
As all his work revolves around shadows and light, his only request was about natural light, and natural materials with a neutral atmosphere that will don’t disturb him at work.
So, the space was an old technical terrace that was not used for much, and the idea was to cover a part of it with a curved glazed ceiling that will contain all things that he needs to work, the proposition was to have a space bathed in diffused light equipped with all the comfort for a painter.
The realization of the project was not easy because of the site’s accessibility. The space contains a workspace, a large work plan with all paint material, an office space with his library, a living room, a storage room, and a bathroom.
All the canopy was made of powder-coated metal in a workshop and was assembled on site. All the heat-tempered glass of the canopy is sandblasted to diffuse the light and make the drop shadows disappear which is very important for a painter artist studio.
All the parquet floor was made in oak, and the work plan was made in local travertine. The large plinth (25cm) also was made in travertine.
The desk and the library are placed on wheels on rails, and it slides as a back door making the entrance of the storage room.














