HAIKU Hair Salon
MANUFACTURERS
101 Copenhagen, Fukaken, Metrocs, Muji, Nuskool
GREENERY
Qusamura, Kouhei Oda
YEAR
2022
LOCATION
Kure, Japan
CATEGORY
Wellness Interiors
Text description provided by architect.
A tenant building that used to be a building materials shop on City Hall Street, Hondori 4-chome, Kure City. The building had been the site of the second renovation school, and we were asked to renovate this space into a hair salon.
When we looked at the existing space, we were most impressed by the materials that had been left behind in the building, such as the brick tiles on the exterior walls and the glass blocks in the passageway.
I wondered if it would be possible to create a space centered on these materials. The name of the hair salon is HAIKU. I was told that this five-letter word has become a commonly known word everywhere in the world.
As I looked at the space with this in mind, the material module began to look like the squares of a manuscript paper. Although it is impossible to project letters onto the squares, I thought it would be interesting to create a space where a person's story could be revealed by projecting his or her image onto the uniform grids.
The location of the building is on a corner, and there are signs, tent marks, and exposed infrastructure on all three sides of the facade. The idea was to create a space with two strong time frames mixed together by leaving the scraps from the demolition work unfinished.
The new façade fittings were created by building a horizontal latticework in a set-back location from the exterior wall as if the modules of the exterior wall tiles were scaled up and interlocked with each other.
This lattice is sandwiched between the existing glass blocks to form a narrow alleyway that connects to the entrance.
At the far end of the alley, a five-leaf pine bonsai tree is displayed on a base to emphasize the sense of the depth of the alley as seen from the sidewalk.
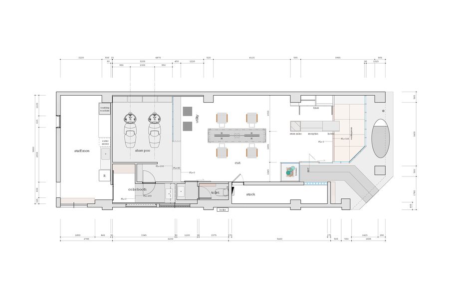
The interior of the salon is a concrete skeleton space with the salon's functions incorporated in a Japanese style, and the shampoo table is accented with bricks.
This is a reference to the brick used as a material for the sidewalks of the shopping district in the past when this town was full of people. The gap created between the structure and the set-back facade is open to the city.
The form of the sculpture, which is an intermediary between the publicness of playground equipment and the solemnity of stones placed in a Japanese garden, is visually and tactilely interesting and is sometimes used as a playground for children and sometimes as a comfort for the eyes of the elderly.
The space of the rugged existing structure and the delicate Japanese salon space. The wall surface, which looks like a manuscript paper of various shapes with the smallest module of the material as a grid, connects these two contradictory spaces.















