
Blue Bottle Coffee Shanghai Cafe
ARCHITECTS
Schemata Architects
CONSTRUCTION
RHY
MANUFACTURERS
Whitelight, Zh Design & Construction
ACOUSTIC DESIGN
Taguchi Audio, WHITELIGHT.Ltd
PROJECT TEAM
Shota Miyashita, Takuya Enta
LOCAL ARCHITECT
RHY
PHOTOGRAPHS
Studio FF
AREA
762 m²
YEAR
2022
LOCATION
Jing An Qu, China
CATEGORY
Coffee Shop, Coffee Shop Interiors
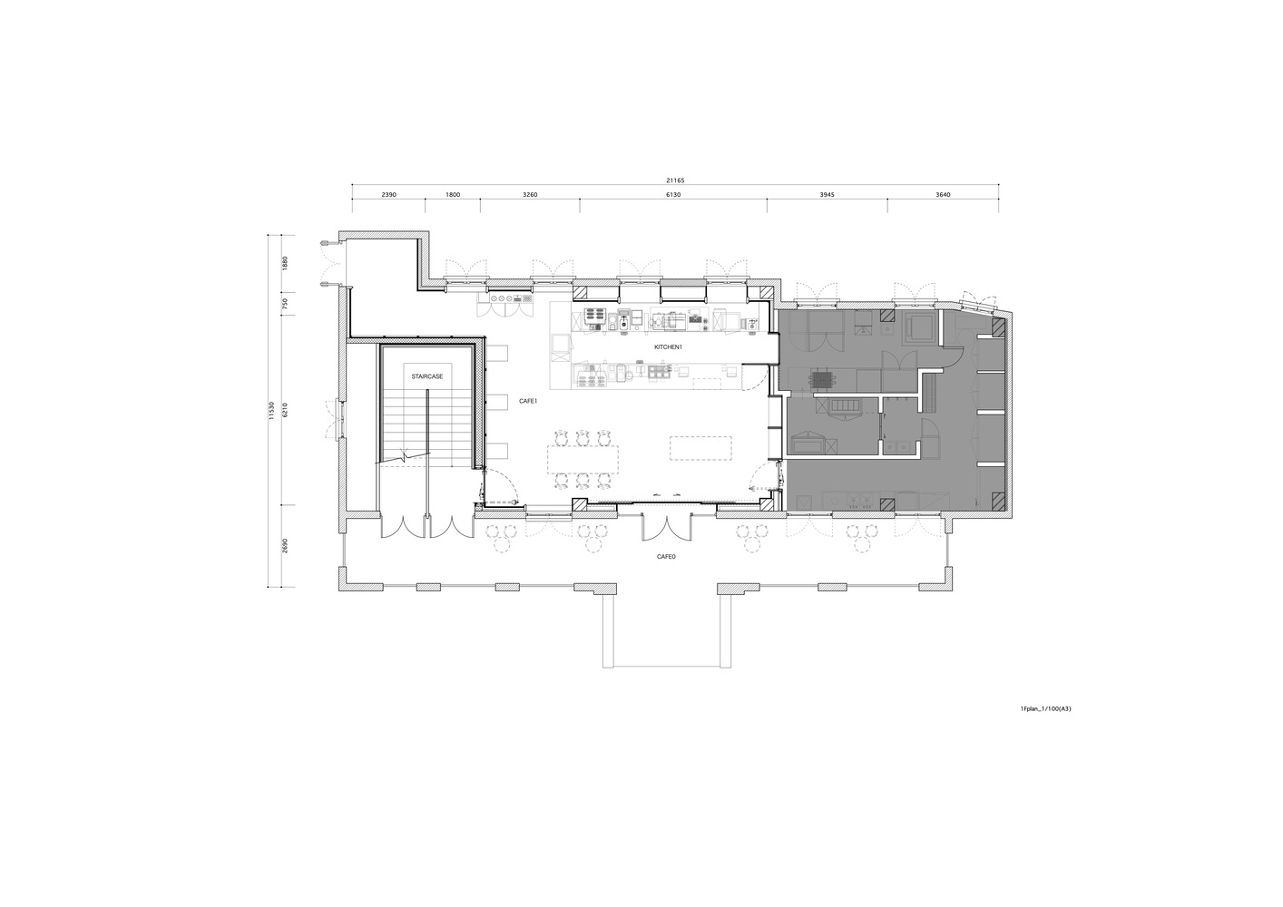
The Blue Bottle Coffee Shanghai cafe will be constructed in a Western-style-historical building, preserved by the city of Shanghai.
However, the historical decorativeness is given only to the outside of the existing building. Inside, the RC structure of the pillars and beams is exposed.
We develop our idea by focusing on the boundary between its historical and contemporary elements.
Aiming to shift the boundary inward, white molding walls and ceilings are installed in addition to the antique furniture and the counter made with old woods.
On the other hand, existing concrete structures, glass, and stainless steel furniture express the contemporary atmosphere.
The difference in materials and furniture between the ground floor and the second floor will create a distinct guest experience.
Newly-made furniture and concrete floors will give a cool impression to the quick visitors on the ground floor. The guests can enjoy a luxurious time with vintage furniture on the second floor.






















