
Pediatric Dentistry Clinic Isabel Cadroy
ARCHITECTS
Font Arquitectura, Vitale
PROJECT DESIGN
Font Arquitectura
INTERIOR DESIGN AND BRANDING
Estudio Vitale
PHOTOGRAPHS
Santiago Martín, Hilke Sievers
AREA
350 M²
YEAR
2021
LOCATION
Castellón de la Plana, Spain
CATEGORY
Dental Clinic, Detail, Healthcare Interiors
Text description provided by architect.
The interior design project for the pediatric dentistry clinic of Dr. Isabel Cadroy begins with a new communication strategy to strengthen the positioning of the business.
The new premises and the renewal of the brand represent the beginning of a new stage that consolidates its competitive advantage as a clinic dedicated exclusively to pediatric dentistry and orthodontics for children and adolescents.
For the doctor, it was important that the clinic be friendly and welcoming, but without falling into a childish aesthetic.
And to be able to transform stress and fear, common in visits to the dentist, into confidence and tranquility.
Vitale designs a corporate space that connects with all the public of the clinic and recreates a positive, familiar, comfortable and calm environment.
The project highlights the corporate philosophy of the clinic: the importance of educating families to achieve good oral health and improve the quality of life of their patients.
From this perspective, Vitale generates a common thread that highlights the idea of "learning at the dentist" conceptualizing the necessary communication work carried out by the clinic to make dental processes and treatments understandable.
The creative axis is inspired by some of the learning forms of children's cognitive development.
The brand and the corporate interior design project are generated taking as a starting point the construction games of wooden pieces and the puzzles of elementary geometries.
The clinic surprises-both children and adults with recognizable out-of-scale elements that refer to children's learning such as huge porticoes, lamps in the form of wooden mobiles, or paneling like jigsaw puzzles.
The result is an evocative space that connects with the child in us and transports you.

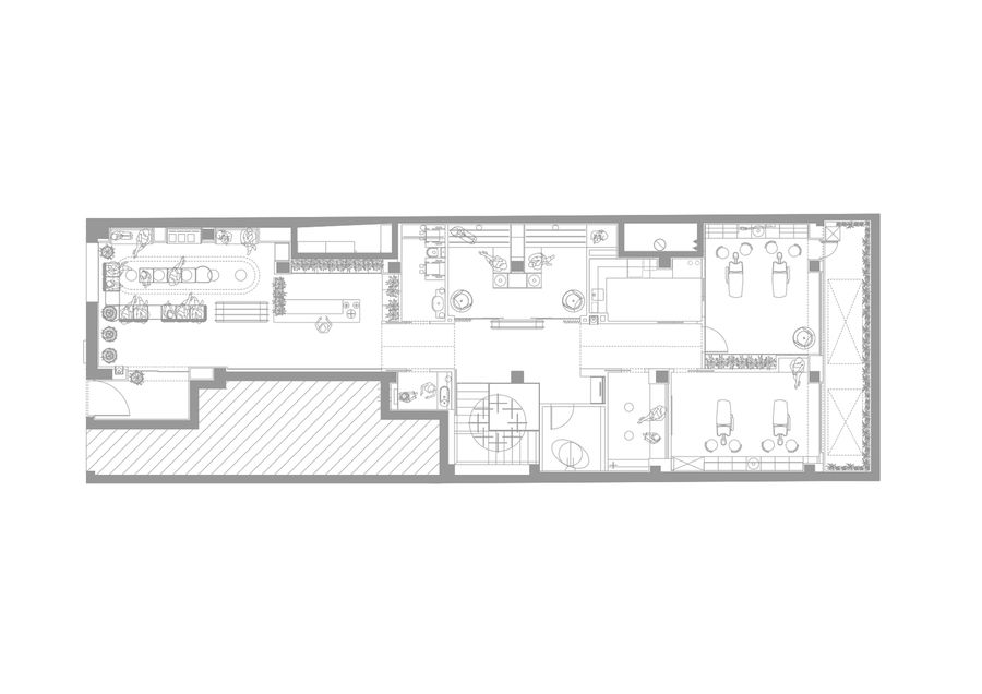
The place consists of 2 floors (with a total of 350m2) that are distributed fulfilling a complete program of needs. All patient care areas are located at street level and the basement is used for personnel and operational uses.
The waiting area is a bright and open space that is delimited and articulated with versatile and modular furniture.
After entering through a 3-meter-high arch built with pieces of wood, the capsule-shaped holes with comfortable upholstery take center stage that invites relaxation and generates a feeling of protection.

The aim is to provide patients with calm and well-being with gentle shapes and warm indirect lighting.
The reception of the clinic is lined with 10x10 ceramic grouting in the corporate color, reminiscent of the typical grid of notebooks.
The walls are protected with pantographed birch plywood panels that help convey warmth and calm.
Plants and plant elements are important in the main points of contact of the clinic with patients (such as reception and treatment cabinets) due to their positive effect on mood.





































