ARCHITECTS
INT2architecture
ARCHITECT IN CHARGE
Alexander Malinin, Anastasia Sheveleva
MANUFACTURERS
AXO light, Vibia, GUBI, Kristalia , Ruben Ireland
AREA
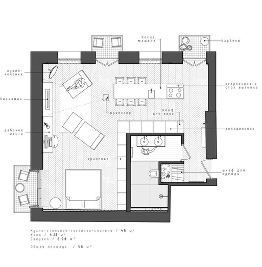
56 m²
YEAR
2016
LOCATION
Moscow, Russia
CATEGORY
Renovation, Apartment Interiors
Apartment is situated in a pre-revolutionary building in the centre of Moscow.
The "shell" of the apartment is designed as a reference to French neoclassicism - white walls, high ceilings, tall windows, parquet, plaster cornices, boiserie...
White walls highlight proportions of the apartment and purity of the architectural form.
These classical elements are the background for the "antibody" - minimalist black box, in which all the technical spaces are grouped (WC, boiler, kitchen, wardrobe).
The Box is a compositional center around which the main functional areas are situated: kitchen with four meter long kitchen island - bar; lounge area with leather lounge chairs, biofireplace and projector; and bedroom with a small workplace.
Modern interior elements contrast in color, material and style with the classical ones, simultaneously complementing each other. Thus, the objects acquire individuality, creating a wholesome architectural space.
















