Walter Street Terrace
YEAR
2014
LOCATION
Bondi Junction, Australia
CATEGORY
Houses
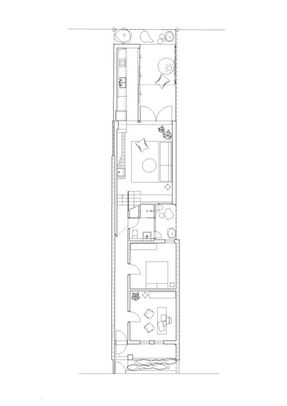
On a tight urban block in Bondi Junction, this addition to a small workers cottage is like a giant three dimensional puzzle.
With no views, bordered by terrace houses on each side and a 10m high wall on its northern rear boundary, this site is heavily landlocked with limited access to sunlight, aspect and space.
The house forms part of a row in a heritage conservation area adding additional planning constraints. New work is to be at the rear, concealed from the street, and, below the front ridge line, leaving little room for additional building footprint and mass.
Our brief was to facilitate the flexibility of use as either a 3 bedroom house or for our client to use for her psychology practice.
A series of voluminous interlinked spaces have been added within the available building envelope to capture the light and extend the perception of each space.
The living room is the key to the house. It is built to both side boundaries making the most of the 5m wide site. An unexpected 4.3m high ceiling adds much needed internal volume and visually link surrounding spaces.
This ceiling extends back as a singular horizontal plane over an upper level bathroom and bedroom, to the existing ridge, then follows the roof slope down to the front door.
The mezzanine bedroom bridges over the hallway with open walls at each end to afford borrowed volume and ventilation.
A high pitched skylight window at the southern end of the living room spans the full width of the site and acts like a sun scoop to direct northern sunlight in mid winter deep into the house, reflected off the internal wall of the room and through the stair to the hallway.
The kitchen and terrace are considered as a single space with the floor material and ceiling levels differentiated from the living room. The ceiling extends over the terrace to partly conceal the neighbouring wall and has been constructed around an existing palm tree.
This becomes the focal point in the garden and for determining the high level window placement to the living room. A courtyard adjacent to the bathroom provides aspect as well as northern light to the bedrooms and direct cross ventilation to the living room.
The material palette is simple and robust and blurs the boundaries between inside, outside and adjoining structures. Recycled brick walls and flooring link the house to the neighbouring wall, thereby blurring the extent of ownership and cadastral boundaries.
Internal openings between rooms, large sliding doors and screens, the use of colour, and the extension of materials and joinery between different rooms further extend perceived spatial boundaries, making the house seem larger than it is.
The planning affords flexibility of use for our client’s psychology practice where clients can reflect prior to session in the living room and garden.
Large sliding doors at the top of the stairs allow the mezzanine bedroom to be used as a secondary sitting space if needed.

















