
GYUBAN Restaurant
GYUBAN RESTAURANT
TRADITION OBJECT
Yeong-ho Lee
INTERIOR DESIGN
Subtext
OBJECT
Si-san Lee
INTERIOR DESIGNERS
Jang-eun Won, Eun-young Kim, Ki-sung Kim
FURNITURE
Ji-hun Ha, Jae-ha Lee
LANDSCAPE
Gogiri Farm
PHOTOGRAPHS
Woo-jin Park, Ki-woong Hong
AREA
306 m²
YEAR
2021
LOCATION
Jung-gu, South Korea
CATEGORY
Restaurants & Bars, Restaurant & Bar Interiors
The royal table for the emperor only took the best of regional produce. This was not only for the better taste and quality of the ingredient, but to check up on the agriculture of the whole peninsula as well. Korean fine dining restaurant GYUBAN carries on the legacy.
The owner chef Kim Ji Young presents customers with authentic Korean royal cuisine. Some restaurants focus on adjusting Korean food to modern tastes, but in GYUBAN, the chef studies and explores every single ingredient in detail through historical research from Chosen culinary manuscript.
Chef’s dishes are more of a liaison between the past and present by bringing the tastes of traditional cuisine. This philosophy became the identity of the place.
Being able to experience past, present, and future with traditional recipe led us to think of the word “record.” We proceed to further this idea and created a concept of “Place of the record.” We collaborated with 6 experts from different fields to elaborate this concept.
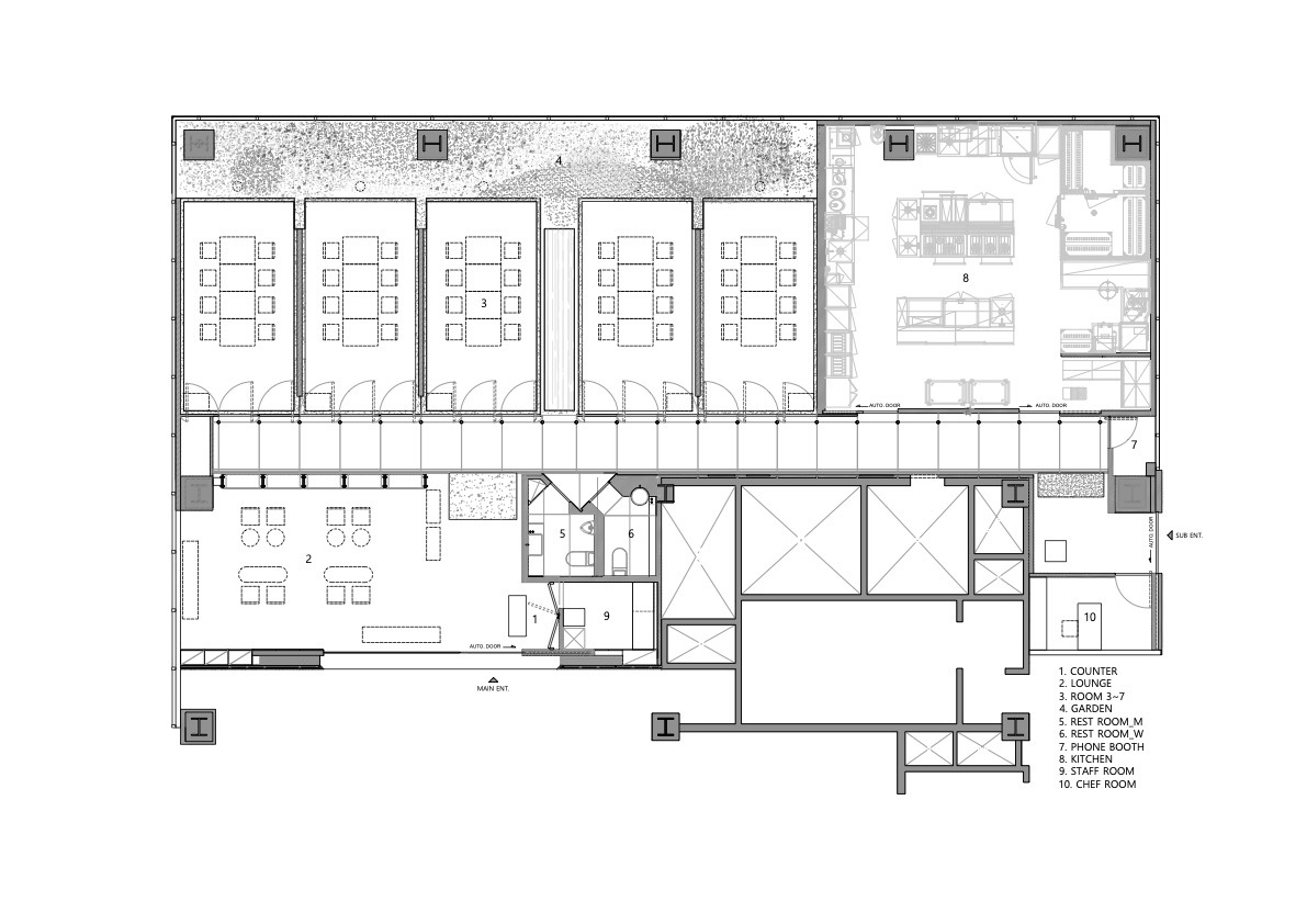
GYUBAN is consisted of lounge as transfer space, hallway to connect the lounge and rooms, and 5 separate dining rooms. We thought of each space as past, present, and future; and we layered these spaces for customers to experience the flow of time.
The main entrance of the place greets customers with layers of Hanji, the Korean traditional handmade paper. As customers enter the hall is the lounge used as transfer space; the chef provides welcome food and gives recess before navigating customers to travel back in history.
Stepping up the stone platform, the hallway adopted horizontal form of traditional architects by placing colonnades. This horizontal form also represents chef’s faith to fully adopt traditional recipe without arrogance and helps customers to naturally flow into different time.
Behind the colonnade, five dining rooms are the space where customers encounter with chef’s cuisine and start journey of time. Lacquered Hanji was specifically chosen as a finishing material for the door; the rough texture reminds people of the ancient manuscript.
This helps customers to immerse in the experience of traveling back in time. All dining rooms welcome customers with warm and comfortable atmosphere. They adopted more stable proportion compared to other spaces of the restaurant. In the dining room, customers encounter chef’s dishes and thus experience the tradition with different senses.
The landscape and indoor water space surround the dining rooms and fully maximize this experience. The landscape consists of native Korean wild plants to add to the concept of “record,” and the water space having its own water circulator system helps create mood for dining in the forest on rainy day.
Philosophy of the owner chef Kim Ji Young was explained and portrayed by the story of the space design. GYUBAN hopes customers to experience the journey of time with exquisite Korean traditional cuisine.



































