House In Playa Del Carmen
ARCHITECTS
YUPANA Arquitectos
COLLABORATORS
Andrea Cruzalegui, Julissa Casas, Domenica Lecca.
CLIENT
Grupo Fundo Doña Pancha.
PROJECT ARCHITECTS
Martín Montañez, Eduardo Acuña
CONSTRUCTION
Grupo Fundo Doña Pancha.
STRUCTURES
Grupo Fundo Doña Pancha.
ELECTRICAL
Grupo Fundo Doña Pancha.
INTERIORS
Elena Vargas
DEVELOPER
Condominios F&f.
PLUMBING
Grupo Fundo Doña Pancha.
SITE AREA
439.80 M²
YEAR
2014
LOCATION
Chincha Alta, Peru
CATEGORY
Houses
Text description provided by architect.
Between Pisco and Chincha Baja there is a major real estate development comprised of weekend houses on the oceanfront, due to the good weather and good accessibility from Lima, which will be consolidated when the new motorway from Lima to Pisco opens in 2016.
From the conception of the project, we sought to create a different concept of beach house through the materials and spatial composition.
For this purpose we took into account the labor resources and construction techniques of the site, optimized by specialists, to carry out the project, resulting in a house made entirely of wood, bamboo and thatch.
By using local labor and resources, the construction time and budget were reduced considerably.
The house brings a very specific requirement, since it is a typical model for the rest of houses in the condominium with a series of possible variations in design, including most importantly, its modularity and allowing under the same structural base a series of future extensions with the same final result. To achieve this, the porches and structures are proposed as a grid.
The design of the house is generated from the concept of inhabiting an outdoor space facing the sea. The climate in this part of the coast allows one to occupy spaces devoid of walls or partitions during much of the year, during summer it is only necessary to find shade and ventilation.
Under this premise, the house is planned as a parallelepiped on one level, as a base, elevated one meter off the ground in order to isolate the structure from sand moisture.
This volume houses basic functions and service spaces, such as secondary bedrooms, bathrooms, laundry, kitchen and living room.
All spaces are articulated through an exterior ventilated corridor, which obtains privacy through a bamboo lattice. This corridor connects with a staircase leading to the second level.
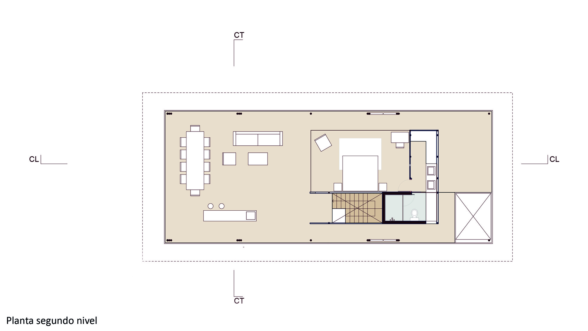
On this base, on the second floor, taking advantage of the views, are the main areas of the house, a large covered terrace where the social activities take place, and a master bedroom with a private terrace at the back of the property.
The entire second floor is covered by a light tall palm structure celebrating the most important room in the house.
The end result is a house similar to a boat stranded on the beach, with an open space on the deck that relates its occupants directly with the landscape.

















