MANUFACTURERS
Mutina
CLIENTS
Luke And Emily
AREA
90 M²
YEAR
2019
LOCATION
Singapore
CATEGORY
Apartment Interiors
Awash with a pastel calmness, this 90-square meter apartment located in the city centre of Singapore has been overhauled from a generic 3-bedroom unit for a young couple.
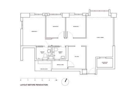
Designed by nitton architects, this urban abode has a delicate poise from crafted transitions between spaces and expressive materiality. The major renovation involved removal of all internal non-structural walls and a full layout re-model.
Entry into the apartment is through an entirely new gallery-like foyer lit by an artificial skylight. Its pared down serenity serves as a soothing prelude. Glimpses of a concealed doorway into the adjoining kitchen and the main living space are revealed at the end of the foyer.
Beyond the entrance foyer, the apartment opens up as a singular volume, uninterrupted in spatial flow. The homeowners’ request for maximized openness, and having the option to enclose a study / guest room and master bedroom separately led the studio to explore design solutions for flexible configuration of spaces.
The studio designed a system of pivot and sliding doors to achieve the flexible partitioning. Sliding doors can be tucked away discreetly, while the centre pivot doors act as a centerpiece in the open layout space. Plywood panels sandwiched by natural rattan and framed with a thin maple hardwood trim are a bold expression of spatial dividing elements.
With hold positions at every 45-degree angle, the pivot doors exceed the function of spatial separation, deftly adding layers of lighting nuances with their movement. Natural rattan embodies an artisanal warmth that imparts a gentle feel to the abode.
A silk wood clad wall extends throughout the length of the living space, forming a continuous plane with wardrobes in the same finish. This alignment is punctuated by doorways to the bathrooms, which are refurbished with uniquely textured porcelain tiles.
Subtle texture variations formed by small colored ceramic inserts in the tiles are delightful details that complement the soft hues of oat and verde in the guest bathroom.
A very slender vanity counter-top with integrated basin is sculpted out of solid surface material to fit within the compact bathroom. Clean silhouettes of furniture pieces amplify the purity of natural lighting and spatial fluidity.
A similarly refined balance of lines, planes and volumes characterizes the open-shelf display cabinetry defining the backdrop of the living area.


















