ARCHITECTS
Lucas Y Hernández – Gil
LEAD ARCHITECTSZ
Cristina Domínguez Lucas, Fernando Hernández-gil Ruano
MANUFACTURERS
&tradition, Bpm Lighting, Cortizo, Ikea, Kresta Design, Nemo Lighting, Artificio, Inspire Aneleen,
Lamettdezign, Mortex, Tao Iluminación
COLLABORATORS
Raquel Quirós Marcos, Lucía Balboa, Ana Alirangues, María Domínguez.
LOCATION
Madrid, Spain
CATEGORY
Houses
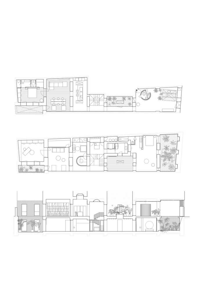
House A12 is a duplex house + a professional office in the centre of Madrid. With direct access to the street it occupies the premises of an old commercial space.
The starting point for the project was a deep and very dark space. The main challenge of the project has been light.
We have used different mechanisms to bring it to all the rooms. Through metallic materials in the ceilings and vertical surfaces, the luminosity that enters from the street and the two courtyards that structure the house has multiplied.
With the same objective, different mechanisms have been put into play: skylights, wall openings and windows.
A landscaped interior English courtyard that receives light from the street filtered by a latticework creating a kind of oasis, a tropical garden of surreal character is connected to the lower level of the house.
The other challenge of the project was the circulations, to solve a wide program in a particularly linear structure.
Different environments have been united in a game of perceptual contrasts where each room is a space that is both differentiated and flexible where geometry, colour and light make up its own artificial interior landscape.
The Roman and Mediterranean house, introverted and organised around the atrium, merges here with the description of Gaston Bachelar, in his "The Poetics of Space", as the house from a phenomenological point of view, where the imagination increases the value of reality.
In this way, the staircase connects the two worlds, "the basement and the attic" at the heart of the house.
A transition from the real to the dreamlike that is visually reinforced through a chromatic duality inspired by Rothko's colour fields.












































