Rehabilitation Project For A Multi-family Building With 8 Houses
REHABILITATION PROJECT FOR A MULTI-FAMILY BUILDING WITH 8 HOUSES
Avlarquitectura + Antoni Bou Architectes
ARCHITECTS
Antoni Bou Architectes, Avlarquitectura
MANUFACTURERS
Autodesk, Jung, Cortizo, Quick-step
LEAD ARCHITECTS
Asun Vidal Layel , Antoni Bou Monclús
CONSULTANTS
Antoni Curull Ceron
COLLABORATORS
Susana Martinez Arevalo, Ana Albiol Segarra
ENGINEERING
Gerard Vilalta
DESIGN TEAM
Asun Vidal Layel , Antoni Bou Monclús
CLIENTS
Ca L'abadessa Immobles S.l, Mar Crespi Garcia,rosa Maria Gonzalez Pernau, Jordi Cuenca Rebull, Javier Lopez Martinez, Jonathan Abraham Revusky, Sara Tarridas Vidal
LOCQATION
Tarragona, Spain
CATEGORY
Housing, Renovation, Sustainability
Text description provided by architect.
The project is born from the participation and self-promotion of homes.
The property developers of the homes under the Community of Assets regime will become their owners. There is no intermediation benefit of the real estate development, the benefit is the home itself.
The production of housing, therefore, arises from the unsatisfied demand of a sector that, in somehow has been more speculative for obtaining capital gains, than productive.
Building “houses to live” and not to exchange, with use value as a priority, is the essence of self-promotion.
Self-promotion allows us to work from the quality of the architecture, from the comfort of the homes, in short, it allows us to work with the architects' own criteria.
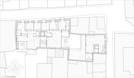
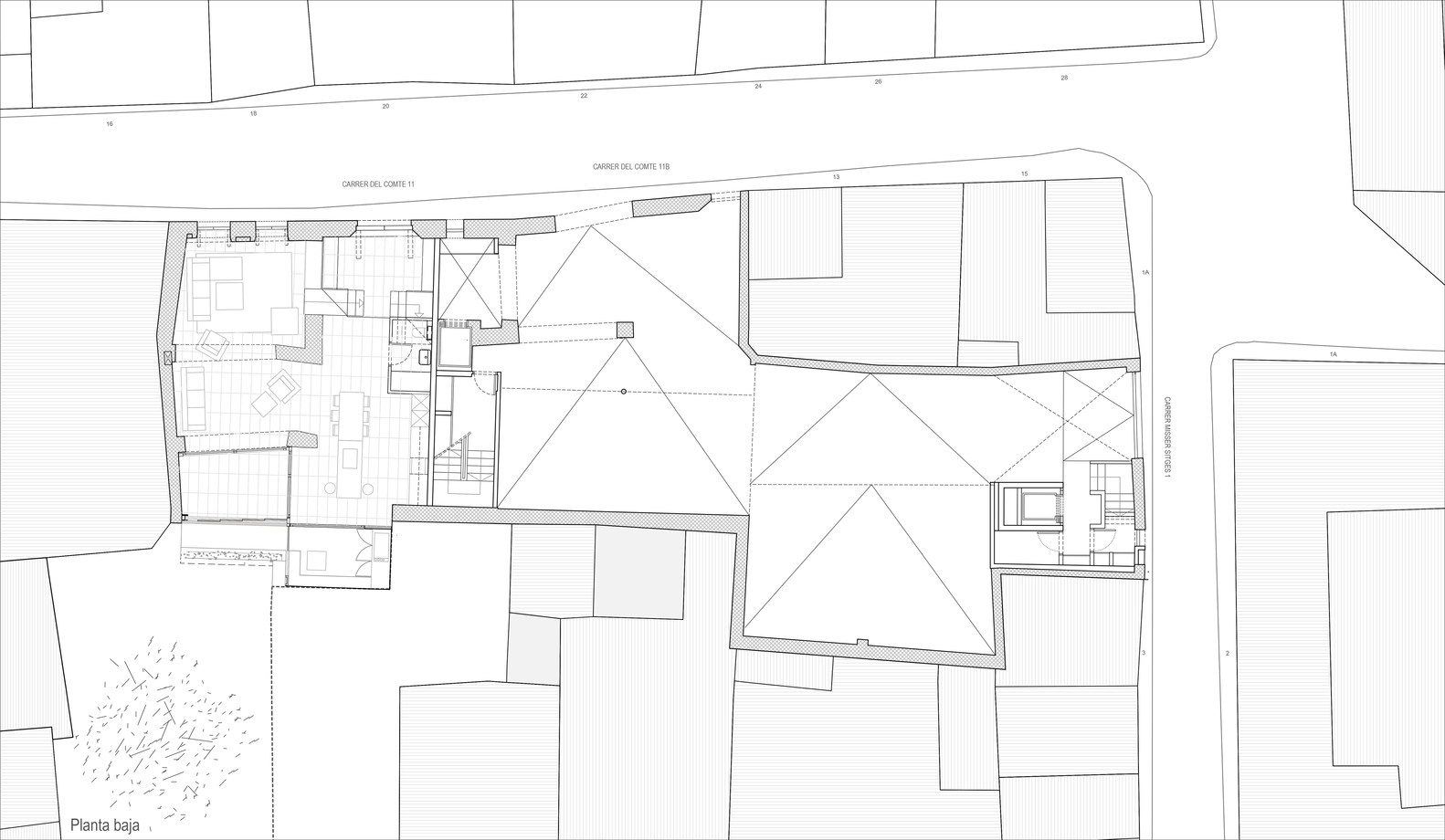
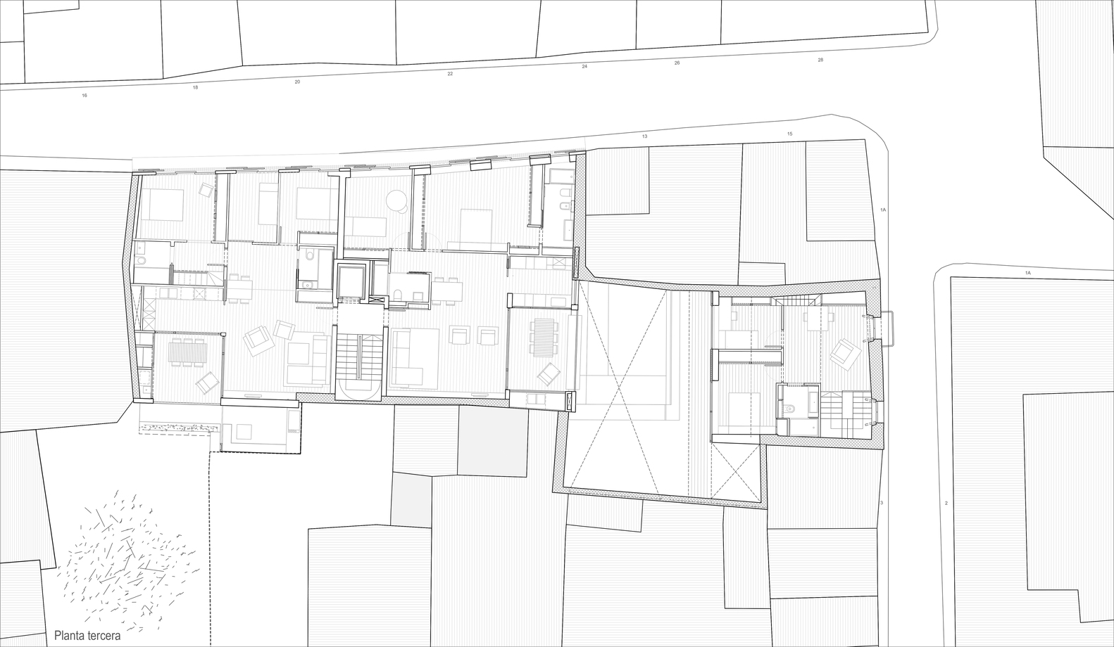
This is the rehabilitation of a set of two buildings joined on the ground floor, the project respects both the volumetric arrangement of the set and its exterior skin and all the archaeological elements on the ground floor.
The building turns towards the interior, where patios are generated that obtain the best orientations and the privacy necessary to enjoy the exterior spaces of the houses.
Noble materials are used such as wood, steel and bare stone from the archaeological remains that are preserved, the exposed structure is part of the final result of the houses and is integrated as a finishing compositional element.
The result is 8 homes (with a garage and storage room) designed to suit the needs of its end users, located in the historic center of Tarragona, a place where it is difficult to find homes that meet the necessary standards of light and spaciousness.
All have a spacious and sunny outdoor space and all have been designed with cross ventilation and energy saving criteria.


























