Little Red House
ARCHITECTS
By Architects
MANUFACTURERS
Dulux, Toto, Philips
PHOTOGRAPHS
Vo Chuong
AREA
280 M²
YEAR
2022
LOCATION
Thành phố Phan Thiết, Vietnam
CATEGORY
Houses
During the Vietnamese Lunar New Year, a family of "artists" sat and talked about a house for more than 33 years with many memories.
During the warm conversation, a big decision was made: It was to rebuild the house for the parents.
And the eldest son representing the children (three architects, two art directors, and one creative director) is responsible for the design and construction of the house.
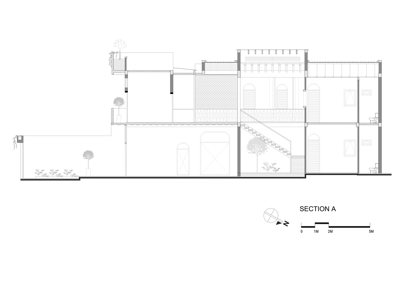
With the criterion of keeping a part of the memory, the reuse of materials of the old house is calculated very carefully.
Typically, the old brick wall is selected with the best bricks to make the arch of the altar area, the wooden beams continue to be used as decorative wooden ceilings and furniture, and the old window frames continue to be used. mounted a few places in the house.
The house space is designed based on the parents' interests and daily habits such as taking care of ornamental plants and raising ornamental fish. Besides, the house is also arranged with light and ventilation cells, and raw materials to help the house closer to nature.
The small house also makes sense because the front of the house is only 2 meters. Therefore, reducing the feeling of the short width of the house is also considered many times.
And then the curves following the waves of corrugated iron are poured with monolithic concrete, creating a difference and uniqueness for the house when viewed from afar.
Specialized structures such as beamless floors, and 100mm thick columns, are also calculated to help increase the space of the house.
The wooden louver door system is also used a lot to take the initiative in getting wind and sunshine depending on the time of year.
And with the effort, consensus, and determination the house was finally completed.




















