X Office Building
ARCHITECTS
T2P Architects Office
ARCHITECTURAL DESIGN
Shikwan Yang, Tomonori Miura, Tatsuhito Ono
CONSTRUCTION
S.h.c
PHOTOGRAPHS
Nakano Yukihide
AREA
760 M²
YEAR
2022
LOCATION
Japan
CATEGORY
Offices, Cowork Interiors
Text description provided by architect.
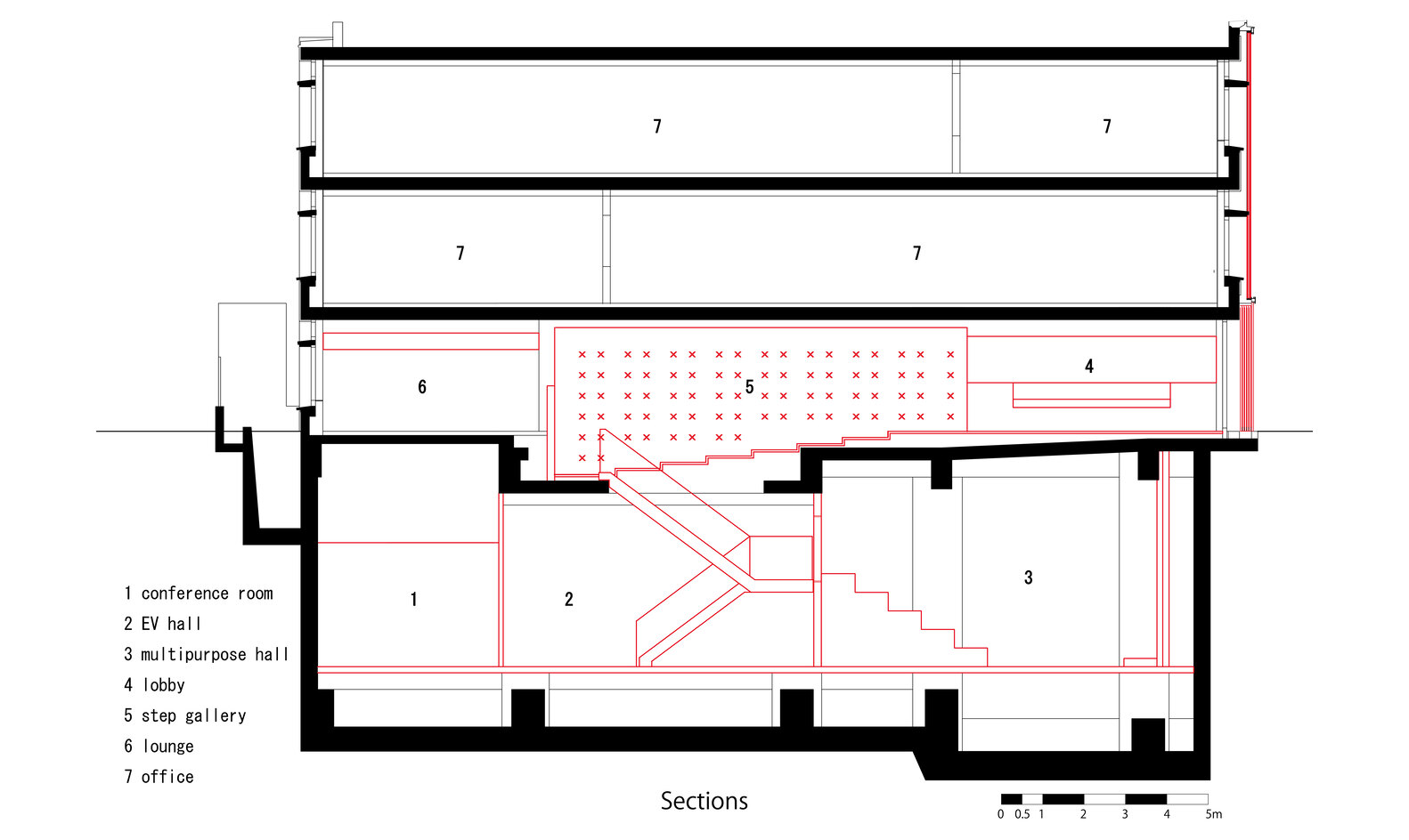
When the management of a 30-year-old company dealing with LTO (data storage magnetic tape) changed, the opportunity to renovate an older branch building and turn it into its headquarters presented itself.
The existing mechanical parking lot was converted into an exhibition space for customers to enjoy and for employees to interact with each other.
Its peculiar metal mesh facade was redesigned to represent the new face of the company.
The existing framework was utilized while new elements were added to embody the company's spirit of learning from the past.




























