Startup Hub in 22@
STARTUP HUB IN 22@
ARCHITECTS
Elastiko
MANUFACTURERS
Autodesk, Lumik, Santa & Cole, Stua, Vitra, Enea Design, Hay Furniture
LOCATION
Barcelona, Spain
CATEGORY
Office Buildings
Text description provided by architect.
The industrial history of the Poblenou neighbourhood in Barcelona bequeathed numerous factories and warehouses for industrial use of various types during different periods.
Since the year 2000 and within Plan 22@, many of these buildings are being restored for uses linked to the workspace, attracting companies related to technological innovation and knowledge.
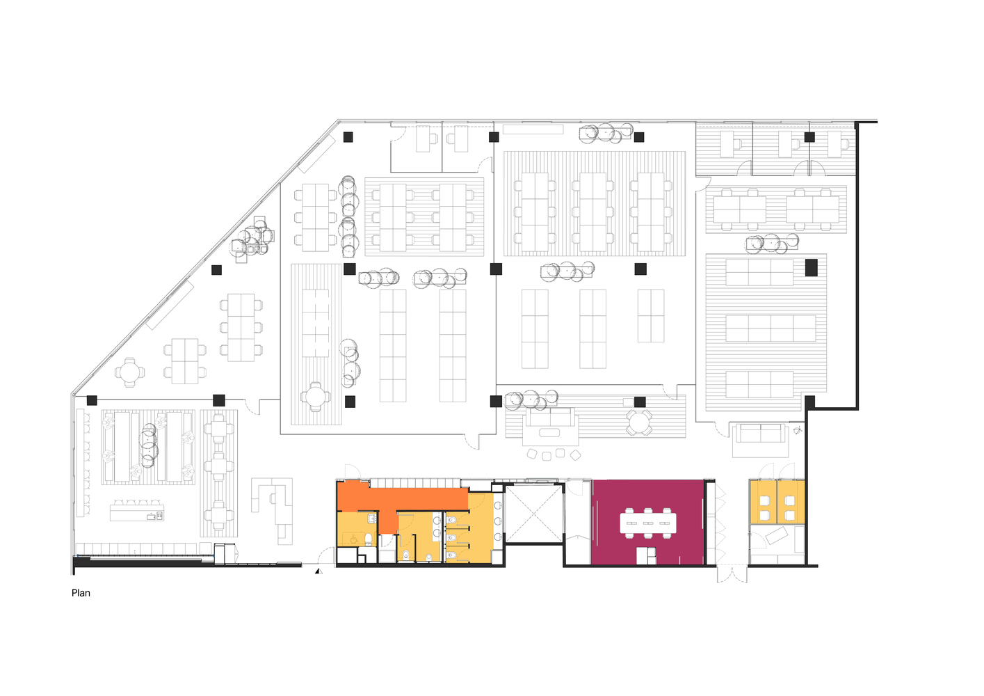
This Startup Hub is located on the fourth floor of the Pere IV building on Calle Pujades, one of the main streets in the Poblenou neighbourhood.
It is a building with a high volume of companies of a creative and technological nature and, together with several teaching and research centres, forms a dynamic and continually developing area, eye to eye with the future of the city.
Unlike the other spaces designed by elastiko for Cloudworks, this venue is not aimed at freelance users, but at companies that wish to acquire medium-sized offices.
The project seeks to create an airy and visually continuous space, enhancing the idea of a great hangar and optimising its corner position, which gives it natural light throughout the day. The 800 sqm facilities convey creativity and professionalism, with the aim of adapting to the different needs of the users.
The central corridor, in addition to granting access to offices and meeting rooms, has been designed with the intention of generating intermediate spaces for meetings, project presentations or relaxation, which brings great dynamism to the entire space.
The use of vibrant colours is a way to identify and differentiate functional spaces like the meeting room or phone booth, strikingly contrasting with the white and wood predominant in the project.



























