J+ Art Space
ARCHITECTS
V2GETHER design
MANUFACTURERS
Dulux, Anpusheng, Shanghai Tongxing
CONSULTANT
Lin Cao Team
ARCHITECT IN CHARGE
Rui Zhao
DESIGN TEAM
Longjun Li, Zhibin Huang, Fangyuan Liu, Qunying Qu, Jingyun He, Zhuoxin Lin, Yi Zhang
CLIENT
J+ Art Space
COLLABORATOR
Xingqian Xi
PHOTOGRAPHS
V2gether Design
AREA
2000 M²
YEAR
2019
LOCATION
Suzhou, China
CATEGORY
Renovation, Interior Design
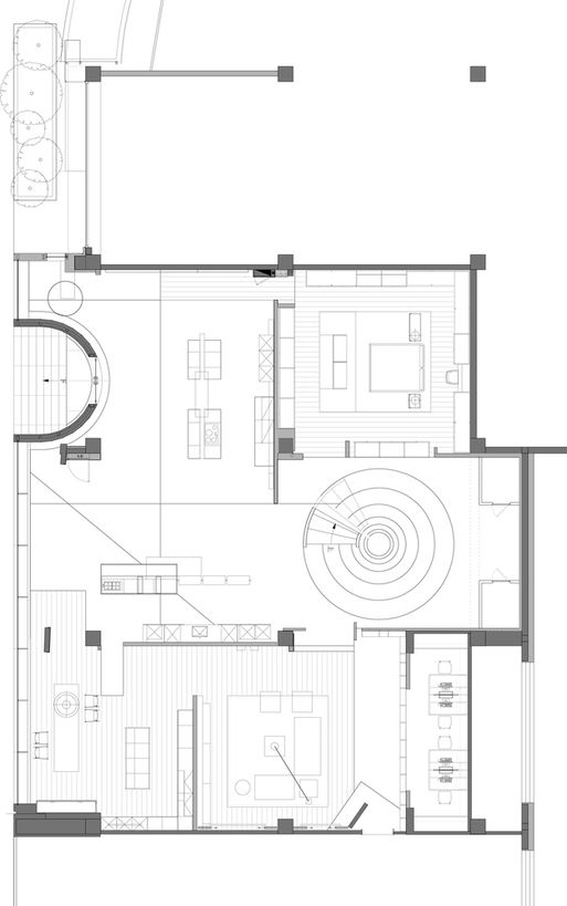
The project is located in Suzhou,the overall reconstruction area of the building's facade and interior is about 2000㎡, which is a multi-functional complex.Specifically.It can be divided into product exhibition area, office area, club experience reception and negotiation area.
Before the reconstruction.The storefront is an ordinary old-fashioned single functional exhibition hall,and the first task is to build a brand-new store image and build an outstanding life art gallery for this brand.
The exterior wall reconstruction of the building continues the strength and rhythm of the original building structure.An unique architectural sculpture body is cast by the natural rust pattern of hot continuous rolling steel with atmospheric corrosion resistance and with the seamless splicing technology.
To construct the whole space from outdoor to indoor. Try to remove the original outdoor wall exposed to the building skeleton;Enhance the structure and bring natural light to make the interior more open, thus enhancing the display effect.
And make indoor and outdoor integration more comfortable and natural.The use of open layout can make people move more smoothly and comfortable in the space.
With the rockery in Suzhou courtyard as the content to create a traditional landscape artistic conception.Perhaps too figurative painting is easy to rob the display effect of the product,so we choose the more abstract form of expression, which brings endless reverie to readers.
The combination of the overlapping structure and the original exposed structure forms a rich, free and playful spatial level.
The sphere device of the main passageway’s spiral ladder part becomes the focal point of the whole space.The sphere suspended in the mid air makes the spatial themes richer, to create a sense of mystery and to stretch out people's mind.
When the architectural framework extends to the interior, it is bonded with other loose forms to form a paper-cut sculpture space similar to semi-finished products,to enable people to see different product display areas from different positions or leakage gaps.
It can effectively control the integrity of space and facilitate the replacement and improvement of products in decentralized areas in the future.
The space created by frame and paper cutting always feels lack of some content,it seems to be over rational.
Then a free cross linear device is designed based on the rust plate material to make the composition of space more flexible.
Suzhou always reminds people of human traditions and exquisite life,the first thing that came to my mind subconsciously was the weaving elements of bamboo.
The messy line devices, such as the flowing sand pen of cursive script, or perhaps a pile of dry straw in autumn field, decorated and softened the space naturally and kindly by the repeated deliberation of the art team.
The different body blocks in the space will naturally form a variety of three-dimensional structures.



























