Covering Patio Of Polytechnic UA
ARCHITECTS
Daniel Carratalá, Woha By Antonio Maciá
TECHNICAL ARCHITECT
Francisco Rodriguez Navarro
LEAD ARCHITECTS
Woha By Antonio Maciá: Antonio Maciá Y Ana Mora
MANUFACTURERS
Reintegral S.l., Toldos Del Segura S.l.
DESIGN TEAM
Antonio Maciá Mateu, Ana Mora Vitoria, Daniel Carratalá Climent
COLLABORATORS
Ana Fernández Martínez, David Gil Delgado, Juan Antonio García, Rafael Zarza
PHOTOGRAPHS
David Frutos
CONTRACTOR
Reintegral, Sl
YEAR
2019
LOCATION
San Vicente Del Raspeig, Spain
CATEGORY
University, Renovation, Educational Interiors
Covering patio of a building necessarily implies transforming it. To convert an exterior space into an interior one.
Lighting and ventilation conditions must be maintained without altering the thermal balance.
In addition, it must protect from wind and rain. The idea of the project is to go back in time to the light and bright skylights of more than a hundred years ago, although under a contemporary vision.
In ‘patio principal de la Escuela Politécnica Superior’ events, conferences and acts are held, therefore it was necessary to cover it, for this the resulting space must be protected from the direct action of the sun, wind or rain.
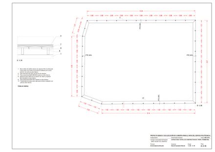
The project proposes the design of a new space through the use of a translucent stretched textile structure using the least possible material.
By tilting the existing walls on the edges of the patio in opposite directions and tightening the translucent fabric on the new perimeter, a space is achieved that seems to expand like a soap bubble from the inside.
The fabric forms a surface that seems to float with respect to its perimeter since it does not touch it and the fact of rounding the perimeter meetings makes the space be perceived as continuous and with diffuse natural lighting.
The interior walls act as reflectors and light multipliers. The sheet acts as a "sundial" as it is perforated at the highest points. The fabric separates from the wall around its perimeter 15 cm, allowing cross ventilation.
Double curvature of the roof solves, on the one hand, the slopes necessary for the evacuation of rainwater and, on the other, stability against the action of the wind. The perimeter is reinforced by a metal compression ring through which the reinforced PVC sheet is prestressed. Membrane condition of the textile structure minimizes the thickness: 0.8 mm for a maximum span of 12 m.

































