Grey. Container | LP AUTO GALLERY
YEAR
2015
LOCATION
Foshan, China
CATEGORY
Showroom
Text description provided by architect.
LP Auto Gallery is co-founded by an outstanding young entrepreneur (L) and a professional racing driver (P).
The Gallery focuses on redefining the artistic integration of supercars and refitted vehicles.LP Auto Gallery learns about the needs of the customers based on the advanced mechanical technology to make sure that every vehicle delivered to the customer is bound to be the exclusive one.
The aim of the designer is to actualize the above concept of the Gallery through language of design.
To highlight the feeling of “integration” and to emphasize the dominant role of people and vehicles, the designer decides to avoid fancy design and decorations and to filter out impurities.
Plain base color is adopted and cement, steel plate, ultra clear glass, matt white latex paint, etc. are used as main materials to turn the whole space into a Grey. Container of plain industry- style.
The visual effect delivered by the grey industry-style is highly matched with the theme of refitted vehicles.
However, large scale use of grey color is easy to bring visitors a feeling of oppression; fortunately the ceiling of this space is high enough, and the designer has added lighting considerately at corners of the space; thus creates an open vision for the whole space, and makes the leading roles of this space people and vehicles particularly striking.
In this container, with plain color set as background, the bright color super cars, shuttling customers and workers interact harmoniously under the light.
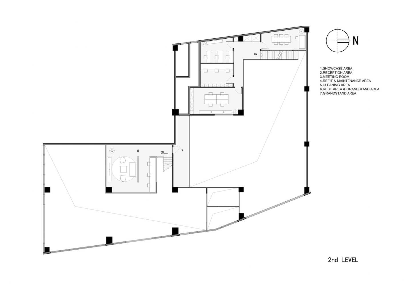
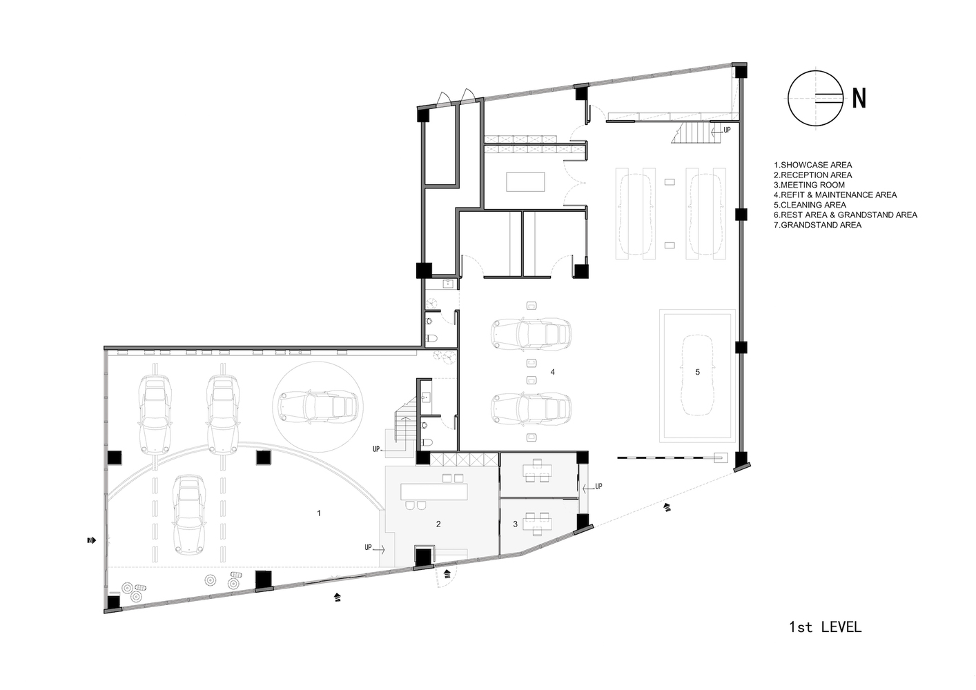
The high ceiling makes it possible for the designer to divide the space vertically. According to its functions, the space is divided into two floors.The first floor includes a showcase area, a reception area, a refit & maintenance area, and a cleaning area. .
The second floor includes a grandstand area and lounge area. Each functional area with different heights allows guests to look at the space through multiple perspectives, and adds more fun to this grey space as well.As what the “Gallery” concept describes, this is not a traditional “vehicles space” any more, it is a space where guests could convey and exchange ideas about art.
Upon walking into this space, guests are able to enjoy the driving, refitting, maintenance and even cleaning here. Vehicles have transcended the material realm, and have become the embodiment of beauty, and the sensation created by the collision and condenses of all kinds of emotions.












