Kids Science Labs 02
ARCHITECTS
Woodhouse Tinucci Architects
PROJECT ARCHITECT
Andy Tinucci
PROJECT TEAM
David Woodhouse, Ed Blumer, Nathan Bowman, Shaun Danielson, Brian Foote
PHOTOGRAPHS
Mike Schwartz
AREA
7900 ft²
YEAR
2013
LOCATION
Chicago, United States
CATEGORY
Learning, Educational Architecture, Adaptive Reuse
Kids Science Labs is a hands-on science learning center for kids aged 2-12 based on the premise that kids are curious.The company's founders don't focus on a chemical reaction or mathematical equation, they encourage exploration to bring science alive.
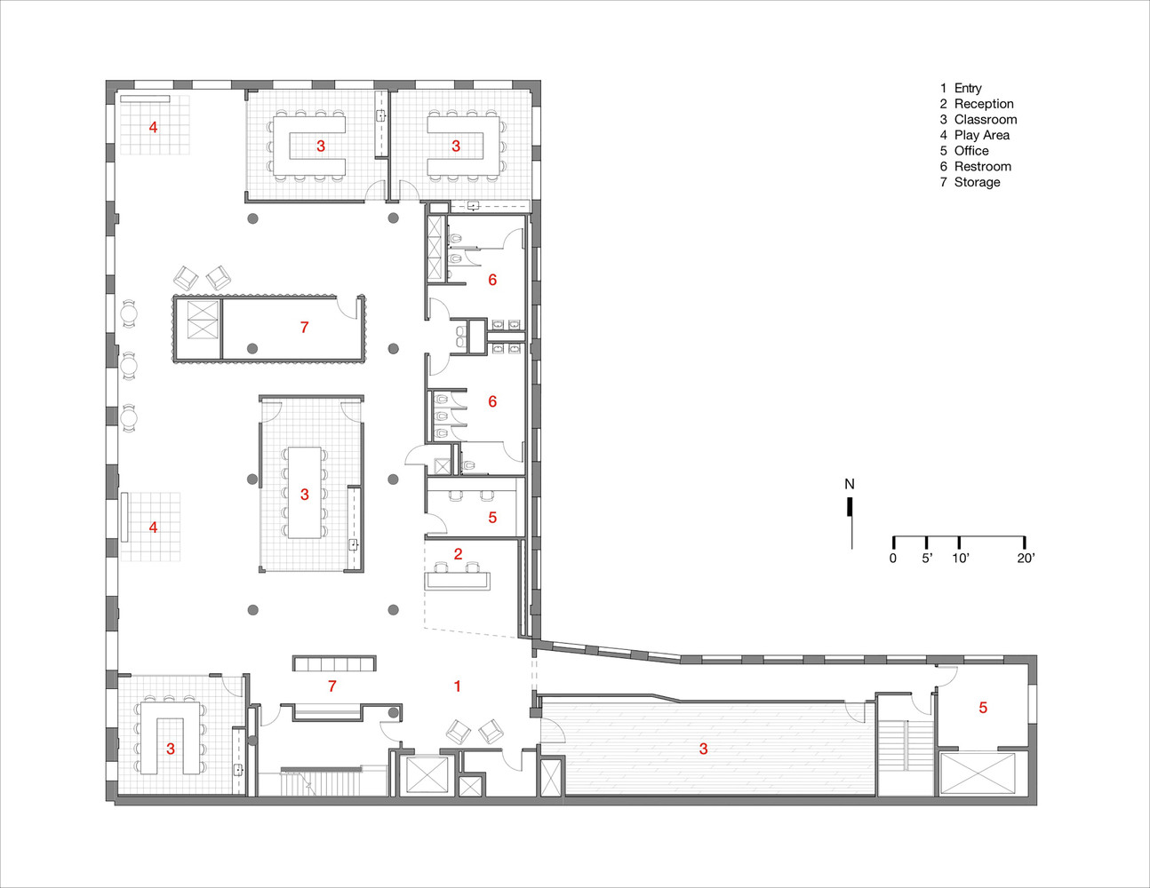
They wanted their 7,900sf Learning & Discovery Lab (in a loft building in Chicago's South Loop) to be a place where;Kids could wonder HOW their world works and ask WHY---and we wanted to make architecture a protagonist in that experience.
Beyond the see-through welcome desk, are two kinds of space for :(1) Independent discovery and exploration---a meandering, interlocking puzzle of blackboard question wall (how does TV work?), corrugated orange container (what's in there?), tall windows (what's out there?) and for
(2) Interactive learning based on (often boisterously messy) experience, not explanation---wood-clad laboratory pavilions with writable walls, cork floors, suspended felt acoustical baffles, and wide-opening glazed garage doors.
Around the corner, the elongated, wood-lined, Accelerator Space is where kids can really let go, experimenting with with homemade catapults and Coke and Mentos rockets.
Materials are tough, durable and natural: maple veneer plywood, common brick, concrete, glass, cork, painted corrugated metal, blackboard, & cardboard mailing tubes.










