ARCHITECTS
Andrew Franz Architect
MEP ENGINEER
A To Z Consulting Engineers, Pc
AV CONSULTANT
Precision Home Theater
LANDSCAPING
Plant Specialists
INTERIOR DESIGN
Andrew Franz Architect
STRUCTURAL ENGINEER
Blue Shore Engineering
GENERAL CONTRACTOR
Zzz Carpentry Inc.
PHOTOGRAPHS
Albert Vecerka/esto
AREA
3000 ft²
YEAR
2013
LOCATION
New York, United States
CATEGORY
Loft, Refurbishment
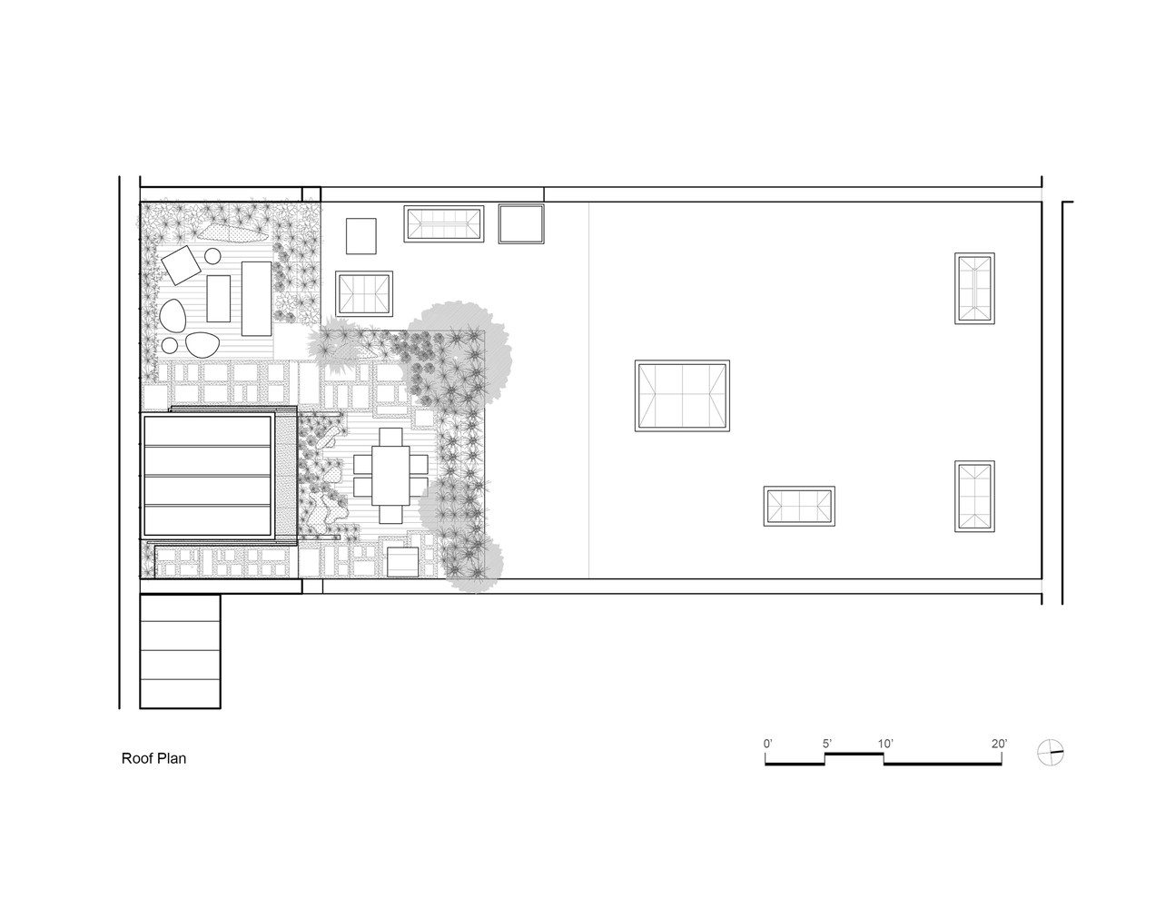
In Manhattan’s landmarked Tribeca North area, the 3,000-square-feet top floor and roof of an 1884 caviar warehouse are reconceived as a residence with large open entertaining zones and a fluid connection with the outdoor environment.
OUTDOOR CONNECTION
The residence is transformed by a relocated mezzanine where a sunken interior court with a retractable glass roof connects to the planted green roof garden above.
This gesture of subtracting volume from the interior brings the outdoors into the primary living zones.
The roof, peeled back, showers the spaces with natural light. When open, ample air flow enters what was once a poorly ventilated and dark loft.
By night, the court acts as an internal lantern illuminating the loft below.
HISTORIC DIALOGUE
Embracing the building’s industrial past, a visual discourse between new and old is devised through insertions of modern materials along with restored or reclaimed materials from the loft.
A custom steel stair repurposes timbers from the old roof joists as treads and landings.
The multiple level residence is unified by a walnut fascia that serves as a conceptual datum.
SUSTAINABILITY & HEALTH
To add to its sustainable nature, new and energy-efficient mechanical systems and appliances are employed.
The project reclaims and reuses loft materials while bringing in new, locally sourced products including the appliances, retractable glass roof, architectural metal work, and cabinetry.
The new roof terrace utilizes reclaimed bluestone pavers and a majority of native plant species that require little water while insulating the environment below.












