ARCHITECTS
Noz Arquitectura
MANUFACTURERS
Alcon Lighting®, 2tec2, Armstrong Ceilings, Bagno Design, Huric, Margres, Osvaldo Matos, Erix
LOCATION
Lisbon, Portugal
CATEGORY
Sports Architecture, Gymnasium
Text description provided by architect.
PUMP gyms fit into the "smart cost" category.
The challenge is to create spaces with architectural quality investing in design and modern feel, keeping constant the premise of finding more economic ways to do so. The original design / concept was fully developed by NOZ.
The PUMP Gyms' identity is strengthened by the intuitive, functional and simple way of organizing the space layout.
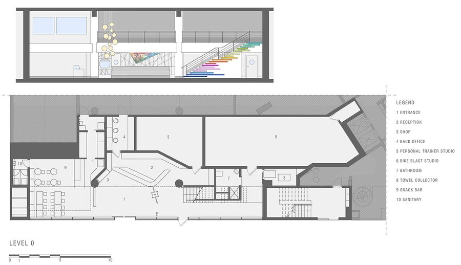
The Nações gym has two levels, the ground level, with a double height space, operates as reception area in direct contact with the street and the upper level for most of the activity areas.
The element of connection - the stairs - becomes the main actor of this space, revealing the young and daring identity and the dynamics of the activity of a gym.
The colour palette used is neutral, to allow the calm needed to accommodate all the visual noise inherent in a gym's equipment and users clothing.
Strong colours are used only to highlight certain elements of the architecture or to stand-out certain furniture elements.
The reception desk is inspired by the movement and pace, through the mismatch of horizontal planes.
Each piece is unique and NOZ participates in its construction in-situ defining the positioning of the various plans. The colour chosen is white, enhancing its formal appearance.












