Impact Hub Berlin Office Interiors
ARCHITECTS
LXSY Architekten
CLIENTS
Impact Hub Berlin Gmbh
COLLABORATORS
KUHN
PHOTOGRAPHS
Anne Deppe
AREA
600 M²
YEAR
2015
LOCATION
Berlin, Germany
CATEGORY
Research Center
The new design of Berlin's Impact Hub provides a platform for innovation and society in which people work together across cultures and generations.
Like a second skin, the interior design of the new Impact Hub Berlin slots into the existing space of the building designed by Werner Düttmann in the 1960s on Friedrichstrasse in Berlin's Kreuzberg district.
The design reflects the corporate philosophy of the Impact Hub Berlin as a co-working space and start-up centre for start-ups in the field of social entrepreneurship. It acts as a catalyst at the intersection of innovation and society, enabling people to work together.
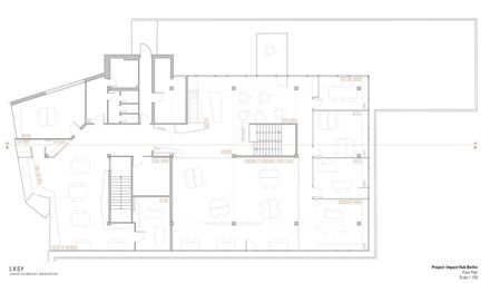
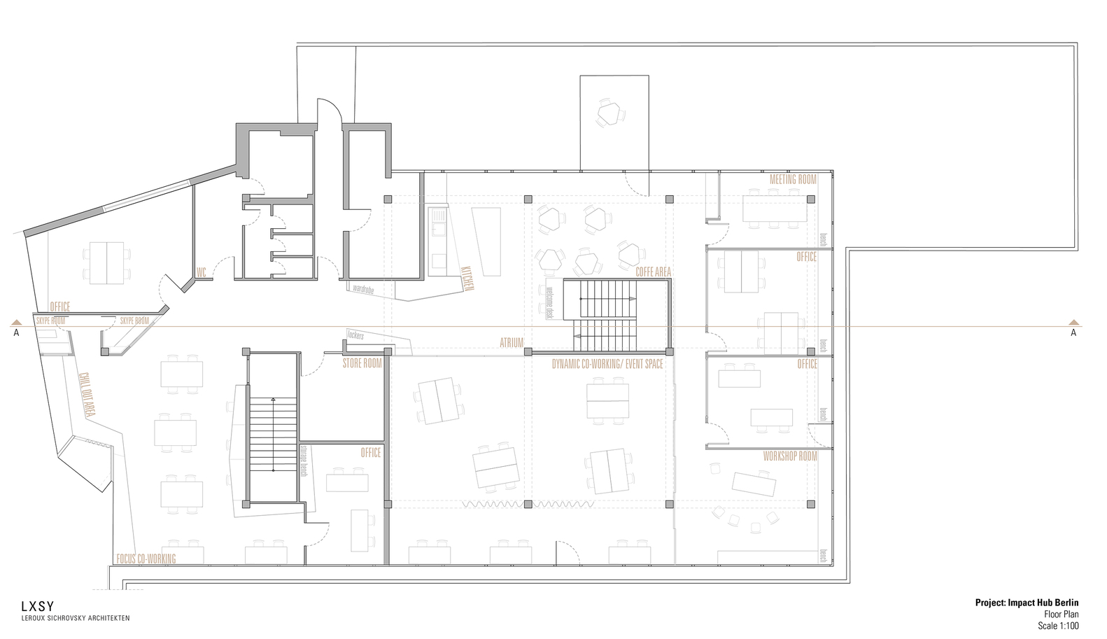
The concept envisions a blend of open and structured work areas, chill-out areas, independent office space, workshop, event and meeting rooms.
The design features interplay between expanse and cohesion, communication and peace, dynamics and concentration. Its simple design forges a warm and open atmosphere that meets the needs of the young and dynamic start-up scene.
The sculptural wooden installation, which envelops the existing walls as a functional element, is transformed from a walk-in kitchen to seating platforms, Skype boxes, shelves and fixed tables.
A box, serving as a "house within a house”, contains office and meeting rooms. The wide and daylight-flooded area of the entrance area can be divided into zones with translucent sliding walls and can, therefore, react flexibly to different uses without losing its open character.
Following the motto of the Impact Hub Berlin "Together we build the future in which we want to live", an intensive participation process served as the basis for the design.
During this time the users of the Impact Hub were involved in the planning process as well as in its direct implementation.
This extraordinary cooperative venture rendered the building project something special. It was the impetus for a dynamic process of growth, change, adaptation and confrontation for all who use, enliven and work with the space - enabling them to create an impact together.



















