
Steel Moment Coffee Shop And Bakery
DESIGNERS
Assemble Project
PROJECT DESIGNER AND ARCHITECT
Guen Young Cho
YEAR
2021
LOCATION
Paju-si, South Korea
CATEGORY
Coffee Shop, Coffee Shop Interiors
Text description provided by architect.
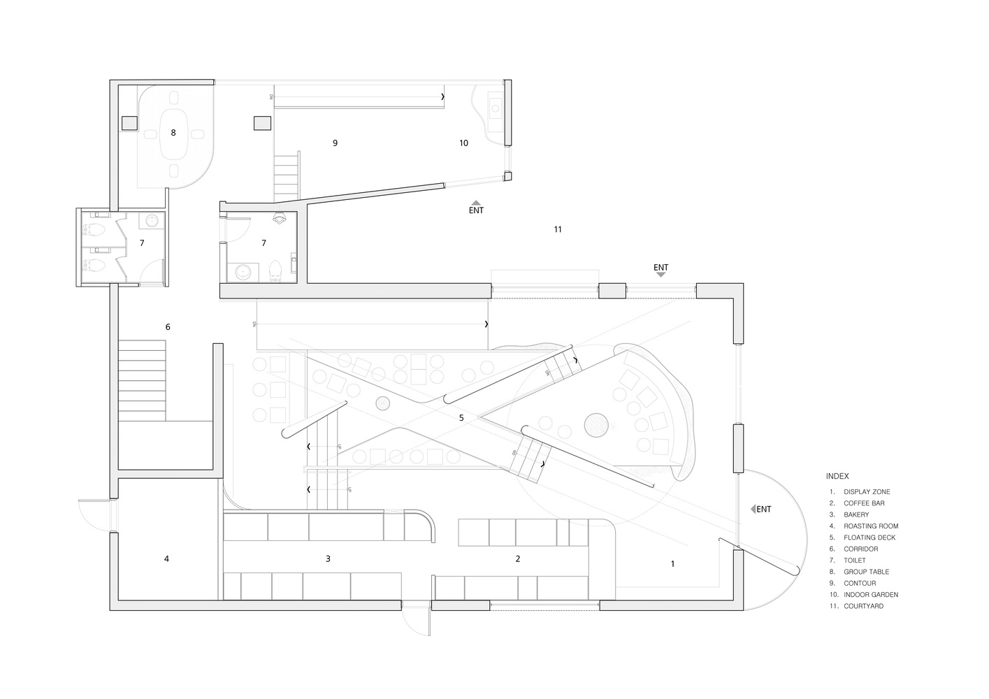
The Steel Momentn shop draws the landscape from the facade's vine and the garden of the yard into the interior, separating the space with various movements, and allowing you to have special experiences from the inside.
While designing the projects, there was a concern about how to overcome the level difference between the high floor level height and the core.
We also paid attention to seat arrangement and spatial composition that are not common inside.
We started to create a design concept directly from the idea of how to overcome the high floor height and level differences of the original building.
In order to effectively solve the level difference, different levels of floors were created at the center of the space, and huge partitions were created to intentionally create various movements.
As a result, various space compartments were planned. We wanted to make a space using brick tiles and hot rolled steel sheets that would look like a small Babylonian garden indoors.
























