AZUSA SEKKEI Headquarter “Haneda Sky Campus”
ARCHITECTS
Azusa Sekkei
COLLABORATORS
Light Design, 6d, Kazuyuki Ishihara Design Laboratory
MANUFACTURERS
Autodesk, Graphisoft, B&b Italia, Itoki, Usm, Ad Core, Adal, Cassina Ixc., Grasshopper, Inter-office, Koma, Kokuyo, Okamura, Ritzwell, Yamagiwa
ARCHITECT IN CHARGE
Kazuyuki Watanabe, Shinichi Saito
DESIGN TEAM
Kazuyuki Watanabe, Takeshi Kido, Shinichi Saito
ELECTRICAL
Teiji Saito, Takuro Kawaguchi, Keita Masuda
ENVIRONMENT
Yukihiko Iseki, Shigeo Ohno, Yukie Okamura
AI/IO T
Kouki Iwase, Kei Watanabe
VISUALIZATION
Go Okumura, Takahiro Soga, Hiroaki Inou, Takuya Yanagita
PHOTOGRAPHS
Shinkenchiku, Takahiro Arai, Shingo Fujimoto, Daiki Morita
AREA
5298 m²
YEAR
2019
LOCATION
Japan
CATEGORY
Offices Interiors
Located in front of Haneda International Airport, HANEDA SKY CAMPUS is the headquarters of Azusa Sekkei, an architectural and engineering design firm with a wide range of portfolio such as Japan National Stadium where Tokyo 2020 Olympic will be held and countless airport terminals throughout Japan.
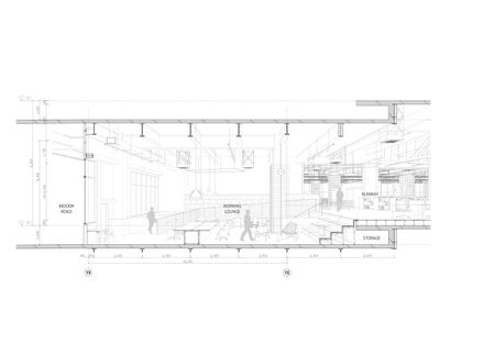
A single floor space in a warehouse, 5,300 sqm, 100 m by 65 m, has been converted into an innovative open office.
Dividing partitions are minimized so that the 450 staff can work interactively within the huge open space.
The functions, such as Workspace, Lounge, Multi-purpose space, Cafeteria, Storage, are all organically merged within the open space.
Four axes called “Runway” are overlaid onto the open space zoning. The longest Runway extends 100 meters through the office from the entrance to Cafeteria.
These Runways not only symbolize Azusa Sekkei as the leading design company in Japanese aviation, also function as a public space inserted in an office.
Open meetings, presentations, and occasional social events are held on Runways utilizing the public nature of the space.
Free address environment let the staff, including the president, to choose any seat in the area according to the type of work and personal preferences.
Variety of working space configurations are provided as architects’ work requires teamwork/ sharing ideas and occasionally sinking in his/her world.
As a result, each staff actively chooses his/her working style, and diverse working environment has been created in the office.
In designing this office, we questioned ourselves how we can propose new working experience in a design firm beyond conventional office format.
We are humbly hoping this new diverse environment trigger us to seek a new way of working.






















