ARCHITECTS
Hastings Architecture
MANUFACTURERS
Vibia, Clarus, MIRAGE, Teknion, Davis Furniture
PRINCIPAL IN CHARGE
William Hastings
PROJECT MANAGEMENT
JLL
CLIENT
UTA
ASSOCIATE
Aaron Petersen
FURNITURE DEALER
Ai Corporate Interiors
PHOTOGRAPHS
Eric Laignel
AREA
15000 ft²
YEAR
2021
LOCATION
Nashville, United States
CATEGORY
Institutional Buildings, Decoration & Ornament, Cowork Interiors
Having outgrown their former space, UTA relocated their Nashville office to a newly revitalized historic office building that would allow them to create a new environment expressive of their culture and clientele.
The office was designed by award-winning firm HASTINGS Architecture who transformed the mid-century former Nashville Public Library into a sophisticated and contemporary headquarters.
The adaptive reuse of this mid-century New-Formalist landmark preserves and integrates elements of the original library—a timeless backdrop for the range of artists and creatives UTA represents.
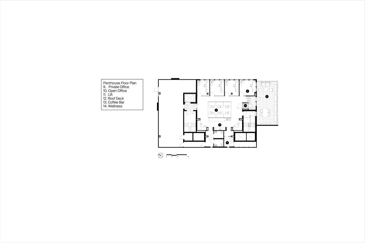
UTA’s new 15,000 square-foot, multi-level space includes 22 private offices, 36 workstations, meeting rooms, phone rooms, a wellness room, rooftop deck, mezzanine café, and various lounges.
Envisioned as a “gallery of talent,” the white box space is specifically designed to showcase the range of artists, creatives, and entertainers UTA represents.
The design introduces accents of darker tones, textures, and materials that infuse the environment with subtle touches of edge and soul.
Guests are greeted with a custom, black-stained oak reception desk inspired by the movement of stacked vinyl records sliding across the floor during a listening session.
In contrast, white back-painted vertical glass panels provide an elegant backdrop to the darker, more sculptural desk.
Visitors relax on comfortable lounge furniture chosen in a soothing neutral palette and accented with large-scale contemporary art as they wait to be seen.
On the first floor, custom black-stained “picture frame” millwork surrounds the glass system—a nod to the stage proscenium.
The elliptical shape of the black-stained Halcon table mimics the curvilinear form of the 16’ marble-clad arched windows.
An articulated Vibia light fixture resembling sound waves serves as a focal point above the table.
Acoustical gypsum ceilings and ribbed wallcovering provide acoustical privacy for digital presentations and virtual conferences.
A central lounge provides pre-function space for the first-floor meeting rooms.
Wood flooring with custom rugs complements the mid-century inspired millwork with brass-fitted shelving details and amplifier-inspired cabinets complete with black mesh fabric.
Agent offices, the backbone of the business, are oversized to support comfortable and well-positioned guest seating.
The custom Teknion sit-stand desks are clad in an oak veneer and framed with floating shelves to display personal and professional mementos.
The mezzanine takes advantage of the 19-foot-high ceilings of the first floor, offering employees a space to gather for lunches, celebrations, and awards show watch parties.
Agent offices, a wellness room, and phone rooms are tucked underneath making the most of the void space.
A monumental oak stair acts as the main circulation point up to the mezzanine—positioned to encourage employees to take the stairs whenever possible.
Offices on the second floor and penthouse levels feature sweeping views of downtown Nashville and the State Capitol.
Directly off the open office penthouse area is a new rooftop deck, complete with lounge furniture, café tables, and vertical landscaping, providing UTA with space for outdoor parties and events as well as giving employees access to outdoor working spaces and biophilic design.



























