ARCHITECTS
Jonte Norin, Rosa Hereu Planellas
PHOTOGRAPHS
Jonte Norin
AREA
70 m²
YEAR
2016
LOCATION
Tor, Spain
CATEGORY
Houses
Text description provided by the architects.
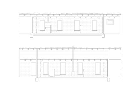
This guest house was built for and partly by ourselves. The building is a former pig sty on the family property in Catalonia.
The building was in need of renovation and we wanted to get rid of the asbestos sheets on the roof.
As a consequence the inclination had to be increased and new steel beams added on top of the old concrete construction.
This created an attic that keeps the guest house both warm in winter and cool in summer.
To keep the exterior intact new walls of light concrete blocks were constructed on the inside to hold the new beams and insulation added in between the walls.
As is custom on utility buildings, no attempts have been made to hide the additions and changes.
The upper part has a smooth plaster in contrast to the old one that has a lot of structure, and the contours of old windows are visible in the layers of different plaster pigments.
Because of the low ceiling height indoors we wanted to keep the space as open as possible and got inspired by the original use of the building. Low walls separate the two beds, kitchen and bathroom from the main room.
The bathroom wall is completed with a glass sheet and wooden curtains to accomplish somewhat of a privacy when there are guests visiting.
A new floor of milled concrete was added. All walls, ceiling and concrete beams were painted white to neutralise the different materials and textures.
On both ends of the room the walls are covered by wooden shelves which contains all the storage of the dwelling. The wooden door of the only closet also serve to close the bathroom.
The way of constructing the shelves is similar to the typical apple boxes that can be seen all around on the fields. This is a very forgiving system considering that walls and floor were not at all straight to begin with.
The kitchen bench, wash basins and shower were completely constructed on site by brick and steels beams. The ceramic is a hand made type from the region.
Two large wooden benches are the natural hang out spots and serve as guest beds when needed. The pine benches and beds as well as the large oak table were all manufactured by a local carpenter.
Because there is only one large room, installations are kept to a minimum. Air circulate in the entire space, electronic installations are concentrated to the wooden walls and the fire place is sufficient as the only source for heating.
The windows face east and west, by regulating the exterior wooden curtains the interior climate can be very well controlled.























