McKinley Park Studio
ARCHITECTS
34-TEN
GENERAL CONTRACTOR
Synergy Construction Group LIC
MEP ENGINEER
Calor Design Group
MANUFACTURERS
Kingspan Insulated Panels, Nanawall, Velux
STRUCTURAL ENGINEER
NLP Concepts
PROJECT ARCHITECT
Josh Hutchison
PHOTOGRAPHS
James John Jetel Photography
AREA
4700 ft²
YEAR
2020
LOCATION
Chicago, United States
CATAGORY
Offices Interiors
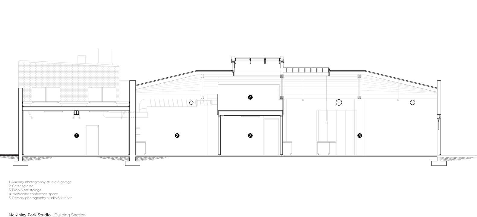
A Chicago photographer approached 34-TEN with a problem they needed help solving: the careful conversion of an existing 4,700 square foot bow truss warehouse into a professional photography studio.
The renovated building needed to house staff offices, a client lounge, ample storage, and a large open space that could accommodate motion and still photography used in advertising.
34-TEN’s primary solution was to divide the space into two distinct zones—a client services zone and a photography zone.
The two zones are separated by a 400 square foot mezzanine which allows clients to observe photography shoots from above while also providing storage of props below.
The existing masonry wall at the north wall of the photography space was removed to allow for the installation of a polycarbonate daylighting system which provides diffuse and even lights throughout the day.

Simple decisions such as reutilizing existing masonry window and garage door openings allowed the owner to focus resources on new infrastructure such as heating and cooling systems, which had not been updated in the building’s 80-year history.
Now the converted warehouse building is a bustling creative business, satisfying the client’s professional needs and contributing to the revitalization of the McKinley Park neighborhood.


















