ARCHITECTS
João Tiago Aguiar Arquitectos
LEAD ARCHITECT
João Tiago Aguiar
BUILDER
Oficina dos Sonhos
MANUFACTURERS
CIN, Efapel, PADIMAT, -, MOSAICOS D’ALCARIA, MÁRMORES IRMÃOS BERNARDES
PROJECT TEAM
Ana Caracol, João Nery Morais, Rúben Mateus, André Silva, Maria Sousa Otto, Rita Lemos, Alexandra Tavares, Renata Vieira
PHOTOGRAPHS
Fernando Guerra | FG+SG
AREA
2583 ft²
YEAR
2016
LOCATION
Lisbon, Portugal
CATEGORY
Renovation, Apartment Interiors
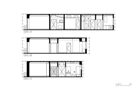
The spatial essence of the apartment was maintained in its original plan, although the whole interior was renovated.
Since there were two toilets opening to the same space, we created two comfortable suites, which surprisingly didn’t exist before in such a big and noble apartment.
With the creation of different types and shapes of interior illumination, all the extensive passageway was animated.



























