TOMORE Zero Co-working Space
ARCHITECTS
SIDES CORE
LEAD ARCHITECTS
Sohei Arao
BUILT IN FURNITURE
betchu-kaguseisakusho Co. Ltd
MANUFACTURERS
Filaments inc., betchu-kaguseisakusho
PROJECT MANAGMENT
Hitoba Design Co. Ltd.
CONSTRUCTION
REM inc.
LIGHITNG
Filaments
CLIENT
Nomura Real Estate Development Co., Ltd
DIRECTION
Seiji Sadakiyo
WALL ART
yang02
PROJECT MANAGEMENT
Motoyuki Konishi, Yoko Akai
PHOTOGRAPHS
Takumi Ota
AREA
151 m²
YEAR
2021
LOCATION
中央区, Japan
CATEGORY
Offices Interiors, Cowork Interiors
“Co-living & co-creating” is the theme of coworking company TOMORE’s pilot space (dubbed “0”). Tomore plans to add a share house to the coworking area in its first official space (dubbed “1”).
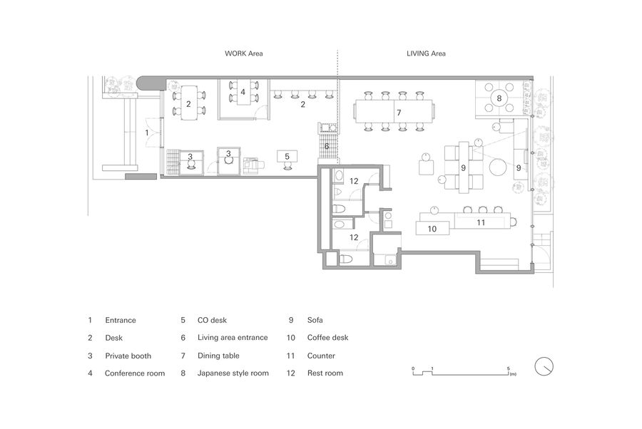
In planning TOMORE’s 0 space, we needed to account for the living space that would be added to future spaces, so 2 separate areas were necessary.
The functional area for the focused work area has desks, a conference room, and 2 private rooms. The living area facilitates working in a way that feels like relaxing at home.
Just inside the entrance lies the focused working area. Private workrooms and a conference room provide accents to the facade.
The layout utilizes space in the entryway that is narrow due to an alley required by zoning laws. It also functions to draw the eye further into the space and build interest/excitement as users head toward the living area.
In the living area, workers take their shoes off on a brick platform that recalls traditional Japanese living - “kustunugi ishi,” a stone platform for removing shoes.
This sets the stage for relaxing in the carpeted area. Next to the shoe removal area is a desk where the communication organizer will sit, facilitating easy communication with incoming guests.
A custom-made modular sofa that can be used from any angle connects the separate booths of the living area.
Arranged in the basic shape, sofa pieces are the perfect distance apart for 1 person to sit on or 2 people to sit face-to-face. Pieced together, the sofa can accommodate events and a variety of other possibilities.
The counter in the back has 3 distinct levels - a bench, a standing coffee counter, and a high counter.
The counters and sofas together combine multiple functions, sightline heights, and usable directions to facilitate spontaneous conversation and communication.
Larger groups can work or eat together at a large dining table. The light fixtures are our multi-faceted Triangles pendant lamps, while tables are our FRAMES model trestle tables.
They can be disassembled and stashed away, creating space to hold events that could even make use of a projector.
The back wall features work by artist yang02, ”a means for graffiti” that features many different colors spontaneously mixing, symbolizing TOMORE’s concept of “co-living and co-creating.




















