Carles Taché Art Gallery
ARCHITECTS
Jorge Vidal
MANUFACTURERS
AutoDesk, Erco, Microsoft, Trimble
AREA
1125 m²
YEAR
2016
LOCATION
Barcelona, Spain
CATEGORY
Gallery, Adaptive Reuse
Text description provided by architect.
A clear construction. The traditional construction of buildings such as this one has disappeared, or at least, buildings with this unity and spatial clarity are not built anymore. Nowadays, contemporary art is not hanged, it is installed.
Nowadays, contemporary art is not hanged, it is installed.The success of spaces with permanent art installations such as the Dia Bacon foundation or the Chinati foundation, discover the precise and attached relation between art and space.
Perhaps this is an antagonism to the constructive excess of the last century where museums of thousands of square meters have been built without a second thought.
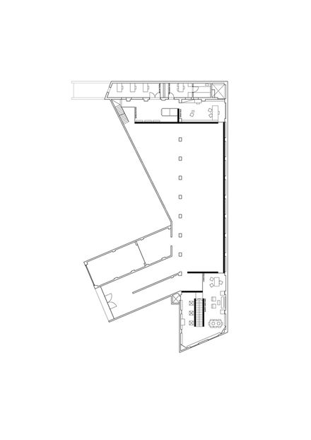
The first impression of the old industrial enclosure called Espai Serrahima is a continuous addition of roofs, entrances, sidewalls and untidy artifacts.
Working there is creating an interior order, a new order that could put the different elements in relation.
We could say that the general disposition of the art gallery and the mixture between the new and the existing elements is a deliberate composition which creates a coherent family of rooms and spaces that change its scale, proportions and light quality.
The existing building is showed completely naked, while the new elements are reduced to an autonomous existence in its interior. This is the new interior order.
We have built a gallery as a space where the artist could show his work in his own personal way.
It is a meeting space between the visitor and the creator. The main point of the project is the absence of distractive elements.
This is a very important point for us, but also it is an important to know how to introduce other layers, such as volume, structure and materiality.
For that reason, our proposal is a 4,20-meter-high enclosure where the visitor´s eye flows without interruptions. This limit defines the volume.
We have built a visual limit that but also a stage to act in. In the back, we find the backstage space, which includes the interior work areas, management, storage and some others exposition rooms that creates a collection of small spaces.
It is a clear space, with a regular geometry and a clear construction. The light travels through the ceiling. The heating and air conditioner facilities are exposed.
The polished concrete slab and the ceiling made out of ceramics are part of the existing.
The old walls are simply painted white and the new ones are covered with plastered in order to create a calm continuity between the elements.
The project commits to the quality of the existent, but at the same time creates additional variations to the formal structure.






















