
VIKASA Headquarters
ARCHITECTS
Enter Projects Asia
ARCHITECT IN CHARGE
Patrick Keane
CLIENT
Vikasa
MANUFACTURERS
Hafele, PANDOMO, Automatic Locker Company Limited, Northern Lights Enterprise, Thai Stonetrade
DESIGN TEAM
Tomas Guevara, Azul Paklaian, Archana Ramesh, Sergio Lissone
COLLABORATORS
Rattan Forever for fabrication
ENGINEERING
Lincoln Scott
CONSULTANTS
Ian Sykes Builder
PHOTOGRAPHS
Ed Sumner
AREA
450 m²
YEAR
2020
LOCATION
Bangkok, Thailand
CATEGORY
Retail
Enter Projects Asia Design Nature-Inspired Headquarters for Vikasa Bangkok - A wellness brief for the internationally acclaimed yoga brand, completed January 2020.
Enter Projects Asia have completed their design & construction for the headquarters of Vikasa.
This is the yoga brand’s anchor building in Bangkok, symbolising the Vikasa ideals around health, wellness and evolution.
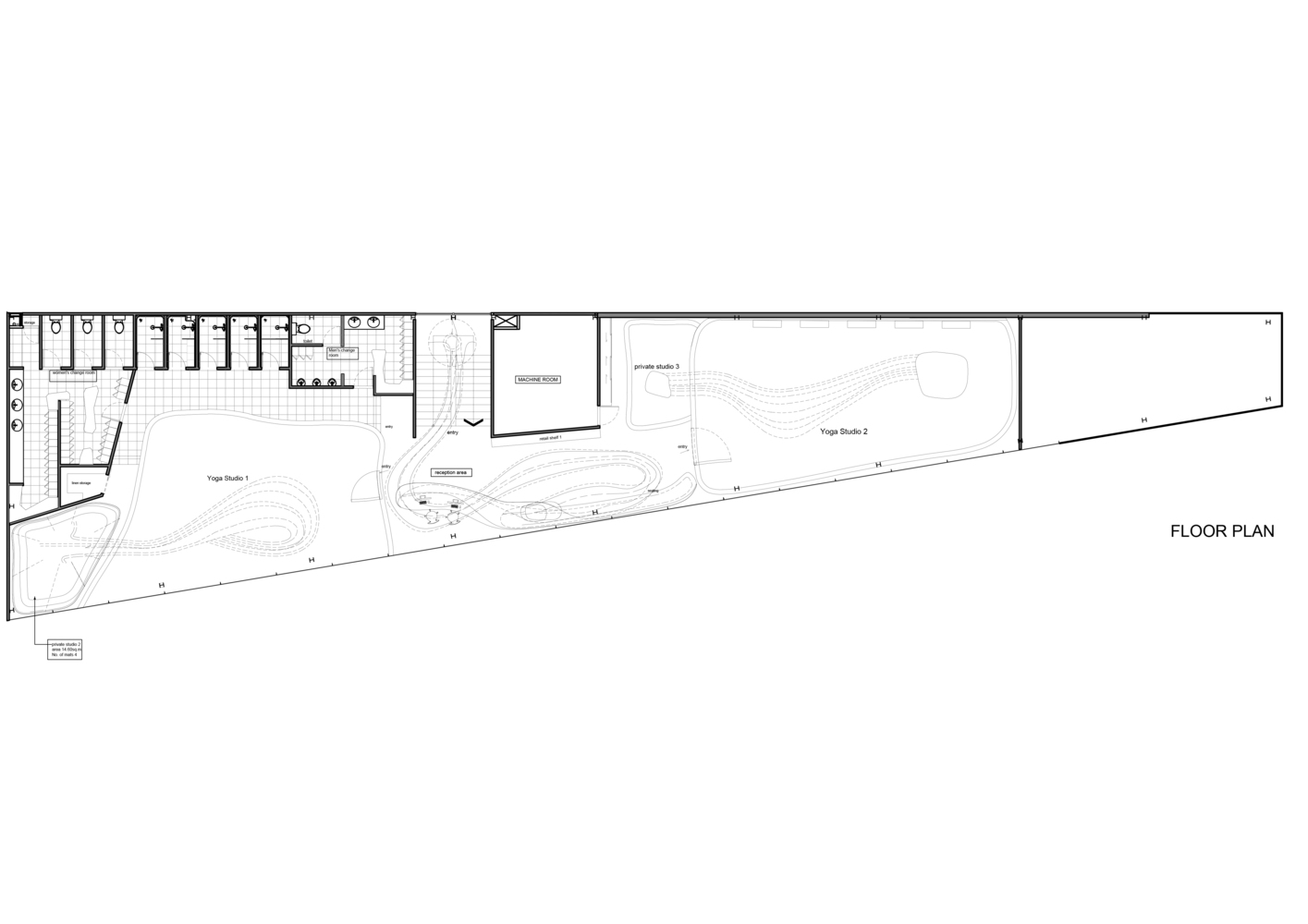
The 450sqm space is comprised of a series of free-form yoga pods - two public and two private pods with a lobby area and luxury bathrooms integrated seamlessly into the layout.
Floor-to-ceiling windows were designed across the entire front façade to flood the space with natural light, whilst allowing the pods to remain private.
Using their signature geometries, Enter Projects Asia facilitated the fusion of 3D technologies with local Thai craftsmanship to bring nature to an urban context.
All elements of the project were made from natural, local materials: Thai hardwood, rattan, palm leaves and local black slate.
Patrick Keane, Design Director at Enter Projects said, “We sought to create a space which mimicked the natural world and reflected the never-ending cycle of life.
The result is a space of captivating calmness, cloaked in quiet contentment - an oasis of tranquility amongst the chaos of Bangkok.”


























